Perfect family starter close to outstanding schools and fast commuting links.
Chain free freehold three-bedroom terrace
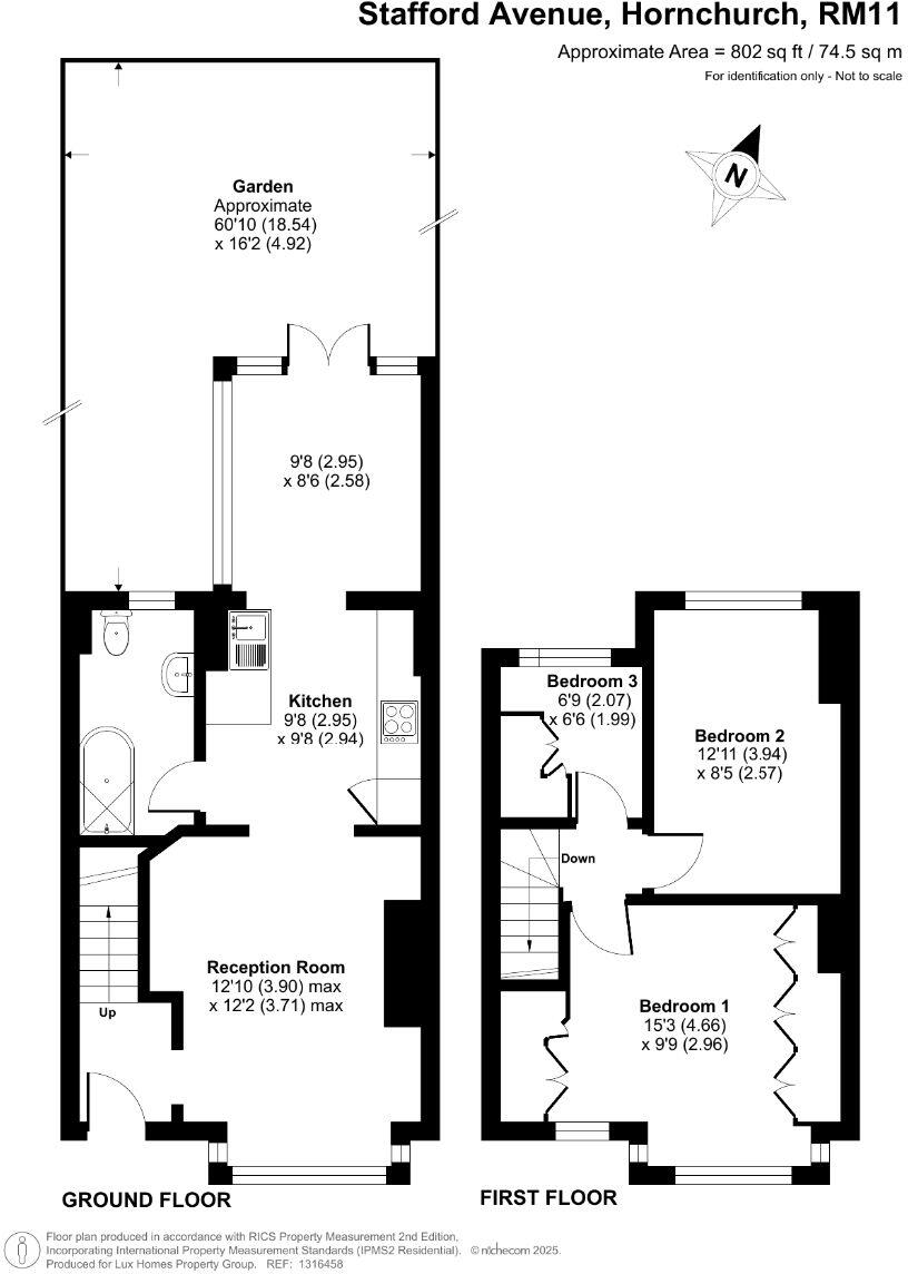
This terraced three‑bedroom freehold in Ardleigh Green offers a modern, family‑friendly layout close to outstanding primary schools. The ground floor’s open plan kitchen/living area flows to a conservatory and a low‑maintenance rear garden with artificial grass — ideal for family meals and easy upkeep.
The accommodation includes a well‑presented reception room with original fireplace detail, a contemporary fitted kitchen with integrated ovens, and a modern family bathroom. Off‑street parking to the front provides practical space for one or two vehicles, and the property is chain free for a quicker move.
Practicalities to note: the overall internal size and plot are modest (approx. 802 sq ft) and there is a single bathroom for three bedrooms, which may feel limiting for larger families. The house is presented in a modern condition but retains a mid‑20th‑century terrace footprint, so buyers should expect typical terrace proportions and room sizes.
For families and commuters the location is a strong draw — walking distance to local shops, pubs and bus routes serving nearby stations for London links. The low‑maintenance garden and recent kitchen and bathroom updates reduce immediate running costs and make this an easy‑to‑love starter home or long‑term family base.
3 bedroom terraced house for sale in Birch Crescent, Ardleigh Green, Hornchurch, RM11 — £475,000 • 3 bed • 1 bath • 754 ft²
3 bedroom terraced house for sale in Nelson Road, Rainham, RM13 — £425,000 • 3 bed • 1 bath • 882 ft²
3 bedroom terraced house for sale in Rural Close, Hornchurch, RM11 — £500,000 • 3 bed • 2 bath • 1147 ft²
3 bedroom terraced house for sale in Harlesden Road, Romford, RM3 — £425,000 • 3 bed • 1 bath • 1015 ft²
3 bedroom terraced house for sale in Valence Avenue, Dagenham, RM8 — £410,000 • 3 bed • 1 bath • 822 ft²
3 bedroom terraced house for sale in Myrtle Road, Romford, RM3 — £375,000 • 3 bed • 2 bath


























































































