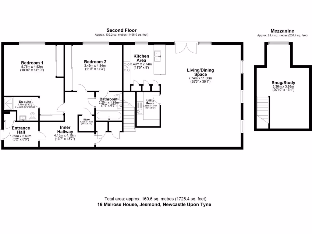
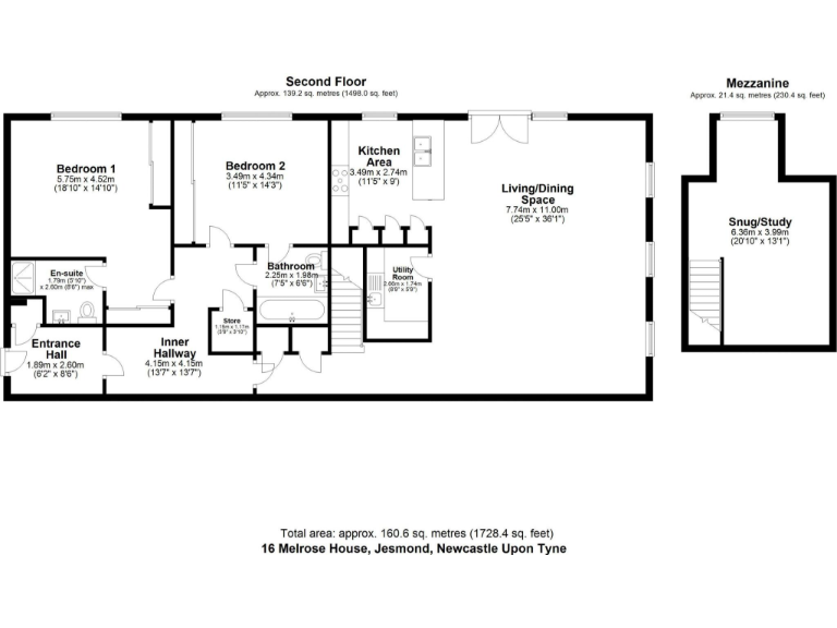
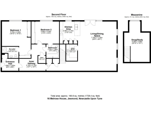
**Standout Features:**
- Stylish luxury modern apartment in Jesmond Dene Conservation Area
- Impressive open plan lounge/dining and kitchen with high vaulted ceilings
- Large mezzanine floor ideal for a snug or study
- Two spacious double bedrooms, each with en-suite facilities
- Private allocated parking space and beautifully manicured communal gardens
- Total size of approximately 2000 sq.ft, offering abundant living space
**Potential Downsides:**
- Leasehold property with 145 years remaining
- Relatively high service charge (£4,252.33 annually) and council tax (Band F)
- Maintenance considerations as primarily a leasehold flat
Nestled in the prestigious La Sagesse development in Jesmond, this striking modern apartment offers an abundance of space and luxury living. With a generous open-plan layout highlighted by high ceilings and dual aspect windows, the living area flows seamlessly into a contemporary kitchen equipped with bespoke cabinetry and integrated appliances. Enjoy the tranquility of views over the beautifully manicured communal gardens from your private Juliette balcony.
The impressive mezzanine complements the design, providing a versatile space ideal for a study or cozy retreat, while both double bedrooms come with well-appointed en-suites for added comfort. Perfect for professionals or families seeking a stylish and spacious residence in a highly desirable area, this property presents a rare opportunity for upscale living. With excellent transport links, schools, and local amenities nearby, it’s a gem that won’t last long on the market. Don’t miss your chance to call this exceptional apartment home.
2 bedroom flat for sale in La Sagesse, Jesmond, Newcastle Upon Tyne, NE2 — £495,000 • 2 bed • 2 bath • 1766 ft²
2 bedroom flat for sale in Rannoch House, Lindisfarne Road, NE2 — £450,000 • 2 bed • 2 bath • 879 ft²
3 bedroom apartment for sale in Princess Mary Court, Jesmond, Newcastle upon Tyne, NE2 — £595,000 • 3 bed • 2 bath • 1454 ft²
2 bedroom maisonette for sale in Eslington Terrace, Jesmond, Newcastle upon Tyne, NE2 — £385,000 • 2 bed • 2 bath • 1404 ft²
2 bedroom flat for sale in Towers Court, Towers Avenue, Jesmond, Newcastle Upon Tyne, NE2 — £439,950 • 2 bed • 2 bath • 1464 ft²
2 bedroom flat for sale in Fernwood Road, Jesmond, Newcastle Upon Tyne, NE2 — £425,000 • 2 bed • 2 bath • 1200 ft²






















































