Mixed‑use freehold with ground retail and one‑bed flat above, vacant on completion..
Prime High Street location with strong footfall
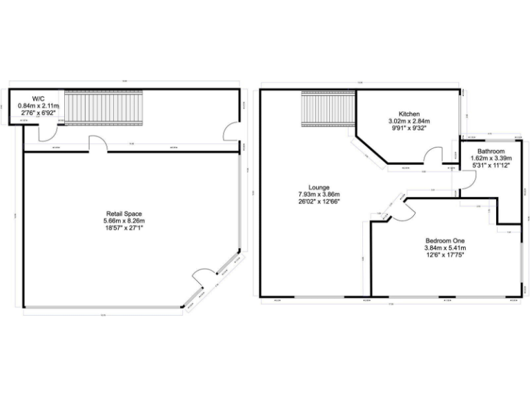
A prominent mixed‑use freehold on Syston High Street, this spacious 1,313 sq ft unit combines ground‑floor retail/office with a one‑bed, first‑floor apartment. The location benefits from strong footfall, excellent visibility and proximity to Syston Town Square and local transport links, making it well suited to an owner‑occupier business or investor seeking immediate rental potential.
The ground floor provides an open retail/office area, small storage and WC; the first floor offers a fitted kitchen, lounge and bathroom with double glazing and gas central heating throughout. Practical positives include vacant possession on completion, a low rateable value of £8,700 and no flood risk. Broadband is fast and mobile signal excellent, supporting modern business needs.
Built in the 1970s, the property is solid but dated in parts and will suit buyers prepared to carry out cosmetic updating or a targeted refurbishment to maximise rental income or trading appeal. The EPC is D — adequate but not high — so buyers should allow for potential energy improvements. Any change of use would require council approval for different business types.
This is a clear proposition for those seeking a visible high‑street presence with living accommodation above. It offers flexibility and hands‑on management potential, though it will reward buyers who invest in refresh works and energy upgrades.
Commercial property for sale in Melton Road, Leicester, Leicestershire, LE7 — £285,000 • 7 bed • 1 bath • 2000 ft²
High street retail property for sale in College Road, Syston, Leicester, LE7 — £215,000 • 2 bed • 1 bath • 1209 ft²
Office for sale in 4 Brook Street, Syston, Leicester, Leicestershire, LE7 — £230,000 • 1 bed • 1 bath • 1590 ft²
Commercial property for sale in Melton Road, Syston, LE7 — £230,000 • 1 bed • 1 bath • 1162 ft²
3 bedroom detached house for sale in Bohemian House, 75 High Street, Syston, Leicester, LE7 1GQ, LE7 — £190,000 • 3 bed • 2 bath • 1270 ft²
5 bedroom character property for sale in Broad Street, Leicester, LE7 — £570,000 • 5 bed • 2 bath • 2791 ft²






























