**Standout Features:**
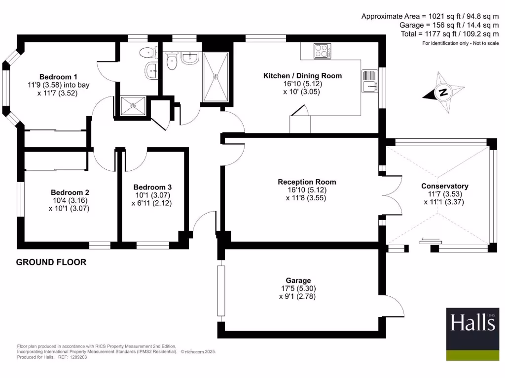
- Well-maintained three-bedroom detached bungalow
- Spacious living areas with high natural light from a bright conservatory
- Stylish kitchen with integrated appliances
- Principal bedroom includes an en-suite shower room
- Generous garden space with garage, sheds, and a snug canopy seating area
- Located in a low-crime, village setting with access to local amenities
**Summary:**
Discover the charm of 4 Centenary Close, a beautifully maintained three-bedroom bungalow nestled in the tranquil village of Kinnerley. This light-filled home features a spacious living room seamlessly connecting to a bright conservatory that opens up to a well-proportioned garden, perfect for relaxation or entertaining. The modern kitchen boasts stylish finishes and integrated appliances, making meal prep a joy. Comfortably accommodating, the principal bedroom features an en-suite shower, complemented by two additional versatile bedrooms.
Set within a quiet cul-de-sac, the property includes a garage and ample driveway space, providing convenience and security. Families will appreciate the nearby excellent schooling options, enhancing the area's suitability for children. However, potential buyers should note that local broadband speeds are slow and mobile signal strength is average, which may be a consideration for some. Priced at £315,000, this bungalow presents a rare opportunity for comfort and future expansion in a picturesque rural setting. Don't let this gem pass you by!
3 bedroom semi-detached house for sale in Coly Anchor Close, Kinnerley, Oswestry., SY10 — £227,500 • 3 bed • 1 bath • 899 ft²
3 bedroom bungalow for sale in Knockin, Oswestry, Shropshire, SY10 — £380,000 • 3 bed • 1 bath • 1002 ft²
3 bedroom bungalow for sale in Holly Grange, Rhoswiel, Weston Rhyn, Oswestry, SY10 — £260,000 • 3 bed • 1 bath • 1086 ft²
3 bedroom detached house for sale in Coly Anchor, Kinnerley, SY10 — £310,000 • 3 bed • 2 bath • 1164 ft²
3 bedroom bungalow for sale in Pant, Oswestry, Shropshire, SY10 — £375,000 • 3 bed • 1 bath • 1748 ft²
3 bedroom detached bungalow for sale in Lower Hafod, Oswestry., SY11 — £410,000 • 3 bed • 3 bath • 1566 ft²










































































