Characterful family home with private garden, garage and strong local schools nearby.
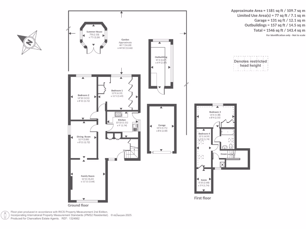
- Detached four-bedroom chalet bungalow, about 1,469 sq ft
- Private, landscaped garden with mature trees, but small plot
- Garage and gated driveway providing secure parking
- One full bathroom plus separate shower room
- Built c.1900–1929 in solid brick; period character
- Likely no wall insulation; modernisation may be needed
- Double glazing present; install date unknown
- Council tax above average
This detached four-bedroom chalet bungalow offers family-focused living on a compact, well-landscaped plot in Egham. At about 1,469 sq ft the home combines single-storey convenience with upstairs bedroom space, a private garden, garage and gated driveway for secure parking. The property sits in a very affluent area with fast broadband and excellent mobile signal — practical for remote working and family life.
Built c.1900–1929 in solid brick, the house has period charm and a cottage exterior with mature planting. Accommodation includes four bedrooms, one full bathroom and a separate shower room, and an adaptable layout suited to families who want ground-floor living plus extra bedroom space. Nearby schooling options include several highly rated primaries and secondaries, plus international independent schools.
Buyers should note some material points: the property is likely to have solid brick walls with no built-in insulation, the age implies typical updating may be required, and double-glazing installation date is unknown. Council tax is above average and the plot is relatively small compared with modern family gardens. Overall, this is a characterful, freehold family home with good connectivity and clear potential for sensible updating to improve comfort and energy performance.
3 bedroom bungalow for sale in Ayebridges Avenue, Egham, Surrey, TW20 — £545,000 • 3 bed • 1 bath • 1071 ft²
2 bedroom semi-detached bungalow for sale in Ripley Avenue, Egham, TW20 — £545,000 • 2 bed • 2 bath • 721 ft²
5 bedroom bungalow for sale in Pooley Green Road, Egham, Surrey, TW20 — £795,000 • 5 bed • 2 bath • 3000 ft²
2 bedroom bungalow for sale in Bond Street, Englefield Green, Egham, Surrey, TW20 — £435,000 • 2 bed • 2 bath • 930 ft²
4 bedroom detached house for sale in Ambleside Way, Egham, Surrey, TW20 — £637,000 • 4 bed • 1 bath • 1327 ft²
3 bedroom detached bungalow for sale in Park Road, Egham, Surrey, TW20 — £675,000 • 3 bed • 2 bath • 1061 ft²


























































































