Compact Victorian home with modern fittings and private garden, ideal for young families.
Two double bedrooms with generous built-in storage and loft space
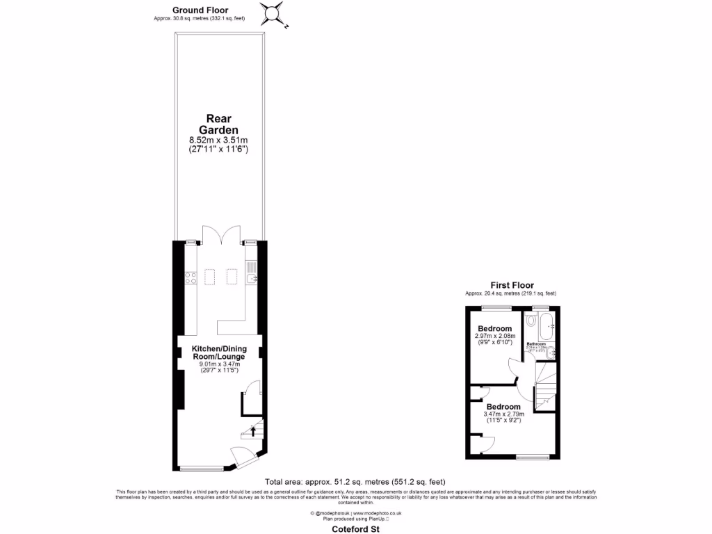
This recently renovated two-bedroom Victorian mid-terrace combines period detail with contemporary living across a compact 507 sq ft. The elegant front reception retains a period fireplace, while the extended kitchen features integrated appliances and Crittall-style doors opening onto a private rear garden — creating a bright, usable entertaining space.
Practical space-saving is a highlight: underfloor heating throughout removes radiators, built-in storage and a boarded loft maximise capacity, and double glazing has been fitted. The home is freehold and close to both Tooting Bec and Tooting Broadway stations, with excellent local schools and plentiful shops, cafés and green space nearby — strong draws for young families and commuters.
Buyers should note the limited overall size and single bathroom; the property suits those who prioritise location and finished style over large rooms. The terrace is of solid brick construction and wall insulation is assumed absent, which may affect running costs despite electric underfloor heating. The area records higher-than-average crime and is classified as deprived; purchasers should factor this into their decision.
Overall, this home offers a low-maintenance, stylish base in a well-connected part of Tooting, ideal for first-time buyers or young families seeking immediate move-in condition with scope to improve thermal efficiency over time.
2 bedroom terraced house for sale in Ruislip Street, London, SW17 — £675,000 • 2 bed • 1 bath • 651 ft²
2 bedroom terraced house for sale in Coteford Street, London, SW17 — £550,000 • 2 bed • 1 bath • 490 ft²
2 bedroom terraced house for sale in Coteford Street, Tooting, SW17 — £500,000 • 2 bed • 1 bath • 545 ft²
4 bedroom terraced house for sale in Eswyn Road,
Tooting Broadway, SW17 — £1,200,000 • 4 bed • 2 bath • 1271 ft²
4 bedroom terraced house for sale in Brudenell Road, Tooting, London, SW17 — £1,075,000 • 4 bed • 2 bath • 1517 ft²
3 bedroom terraced house for sale in Graveney Road, Tooting, SW17 — £775,000 • 3 bed • 1 bath • 902 ft²














































































































