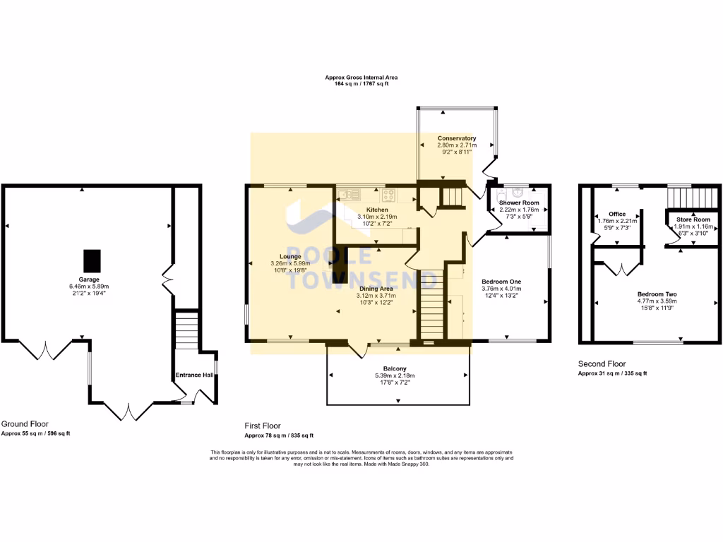
Detached two-bedroom house with bay views, large garden and substantial garage — development potential..
Expansive bay and fell views from lounge, balcony and bedrooms
Large enclosed rear garden with decked and paved seating areas
Substantial garage with fitted workshop and power
Off-street parking for up to four cars on tarmac driveway
Two double bedrooms plus dedicated home office and storage
Single shower room only — one bathroom for whole house
Potential for extension/development subject to planning consent
Double glazing (post-2002); mid‑20th-century build may need updating
Set on a generous elevated plot in the desirable Kents Bank area, this detached two-bedroom house delivers expansive Morecambe Bay and fell views from its open-plan living space and balcony. The home feels bright and airy with large triple-aspect windows, parquet flooring and a Clearview wood burner creating a welcoming principal living area. A conservatory links the house to a substantial, fully enclosed rear garden with paved and decked seating — ideal for alfresco dining or adding a garden room.
Practical strengths include a substantial lower-ground garage with a fitted workshop, off-street parking for up to four cars and modern double glazing installed after 2002. The kitchen and conservatory provide useful storage and service points (washing machine plumbing, under-counter appliance spaces) and the first-floor layout includes a dedicated home office — a valuable asset for home working.
There is clear potential for extension or redevelopment subject to necessary planning consents; the plot size and layout suit a rear extension or garden room, or further reconfiguration to add value. Buyers should note the property has a single shower room only and was constructed in the mid-20th century, so some updating or modernization may be required to meet contemporary tastes. Council Tax Band E is above average for the area.
This house will suit downsizers or those seeking a spacious, low-crime coastal-edge location with excellent views and development upside. Early viewing is recommended to appreciate the scale of the plot, the workshop space and the panoramas from the balcony and principal rooms.
4 bedroom detached bungalow for sale in Redclyffe, 40 Priory Lane, Grange over Sands, Cumbria, LA11 7BJ, LA11 — £550,000 • 4 bed • 2 bath • 1789 ft²
2 bedroom detached bungalow for sale in 51 Laneside Road, Grange-Over-Sands, Cumbria, LA11 7BX, LA11 — £395,000 • 2 bed • 2 bath • 1321 ft²
2 bedroom detached bungalow for sale in Windsway, 58 Priory Lane, Grange over Sands, Cumbria, LA11 7BJ, LA11 — £380,000 • 2 bed • 1 bath • 1292 ft²
3 bedroom detached bungalow for sale in Carter Road, Grange-over-Sands, LA11 — £475,000 • 3 bed • 1 bath • 1046 ft²
3 bedroom detached house for sale in Mill Croft, 18 The Old Nurseries, Grange-Over-Sands, LA11 — £650,000 • 3 bed • 2 bath • 1493 ft²
3 bedroom detached bungalow for sale in Kentsford Road, Grange-over-sands, LA11 7AP, LA11 — £500,000 • 3 bed • 2 bath • 1799 ft²














































































































































































