Nicely presented 3-bed property near town amenities with easy-care outside areas.
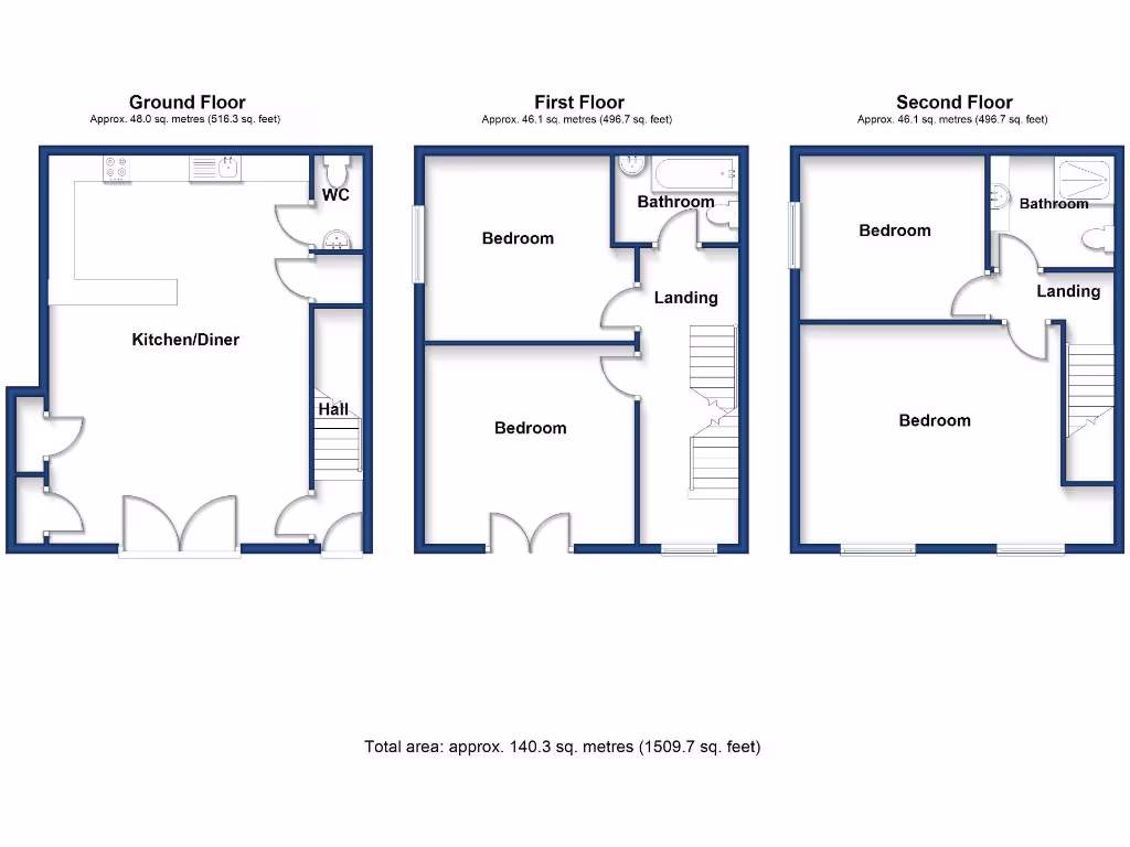
Three double bedrooms across three floors
This well-presented three-bedroom end-of-terrace townhouse is arranged over three floors and suits families seeking low-maintenance living close to Helston’s amenities. Light-filled rooms include a generous lounge with a Juliet balcony and an open-plan kitchen/diner with French doors leading to a sunny patio. The accommodation is practical and versatile, with two bathrooms and plentiful built-in storage.
Practical comforts are in place: double glazing, gas-fired central heating and integrated kitchen appliances. The front block-paved area provides off-street parking; reports vary on exact capacity, but the property benefits from useful external storage in a large timber shed. The compact outside space is easy to maintain and tucked away at the end of a small terrace.
Important considerations: the plot and garden are small, so buyers seeking extensive outdoor space should note the limited footprint. There is a medium flood risk for the area, and some listing details vary on parking capacity — viewers should verify vehicle space and flood-cover implications with their insurer or surveyor. Council Tax Band D and freehold tenure are confirmed.
Overall, this home offers contemporary, low-upkeep family accommodation in a quiet cul-de-sac location close to schools, shops and transport links. It will suit owner-occupiers wanting move-in-ready rooms and investors seeking a rental property with parking and external storage.
3 bedroom terraced house for sale in Helston, TR13 — £275,000 • 3 bed • 1 bath • 678 ft²
3 bedroom semi-detached house for sale in Penhellaz Road, Helston, Cornwall, TR13 — £285,000 • 3 bed • 1 bath • 757 ft²
3 bedroom terraced house for sale in Jubilee Terrace, HELSTON, Cornwall, TR13 — £220,000 • 3 bed • 1 bath • 747 ft²
3 bedroom end of terrace house for sale in Hellis Wartha, Helston, TR13 — £270,000 • 3 bed • 2 bath • 740 ft²
3 bedroom end of terrace house for sale in Three bedroom home with no onward chain, Helston, TR13 — £180,000 • 3 bed • 1 bath • 647 ft²
3 bedroom terraced house for sale in Three bedroom home with no chain, Helston, TR13 — £250,000 • 3 bed • 2 bath • 757 ft²






































































