- Shared ownership (40% shown) reduces purchase price but incurs monthly rent
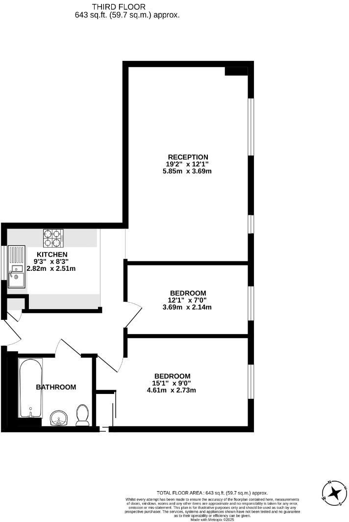
- 643 sq ft, two bedrooms, one bathroom; practical urban layout
- Third floor with lift access and secure entry
- Modern fitted kitchen and bright open-plan reception
- Long lease: 112 years remaining
- Monthly service charge c. £184.52 (annual c. £2,214)
- No private outdoor space; single bathroom only
- High local crime and area deprivation; consider neighbourhood risks
This two-bedroom third-floor flat in N16 offers a practical, well-lit home for a first-time buyer seeking an affordable London foothold. The apartment’s open-plan reception and separate modern kitchen provide move-in-ready accommodation across 643 sq ft, with a principal bedroom and a versatile second room suitable for a home office or nursery.
The property is offered as shared ownership (40% shown) which reduces the upfront cost but does mean a monthly rent and a service charge alongside mortgage payments. The building includes lift access and secure entry, and the long lease (112 years remaining) provides tenure certainty.
The location gives good transport links to Dalston and the City, easy access to Clissold Park, and several highly rated local schools — attractive for young families and professionals. However, the immediate area records higher crime and wider area deprivation indicators; buyers should factor neighbourhood considerations into their decision.
Practical costs are transparent: an annual service charge (c. £2,214) and monthly rent figure are payable. There is no private outdoor space and only one bathroom, so the layout suits buyers prioritising location and value over garden or multiple bathrooms. An internal viewing will confirm condition and suitability.
1 bedroom apartment for sale in The Grove,
London,
N16 8AR, N16 — £113,750 • 1 bed • 1 bath • 527 ft²
1 bedroom apartment for sale in The Grove,
London,
N16 8AR, N16 — £227,500 • 1 bed • 1 bath • 527 ft²
2 bedroom apartment for sale in The Grove,
London,
N16 8AR, N16 — £151,250 • 2 bed • 1 bath • 682 ft²
2 bedroom apartment for sale in The Grove,
London,
N16 8AR, N16 — £302,500 • 2 bed • 1 bath • 682 ft²
2 bedroom apartment for sale in The Grove,
London,
N16 8AR, N16 — £453,750 • 2 bed • 1 bath • 682 ft²
1 bedroom flat for sale in Selcraig House, Bouverie Road, N16 — £136,500 • 1 bed • 1 bath • 651 ft²






























































