High-floor contemporary flat with premium amenities and strong transport links.
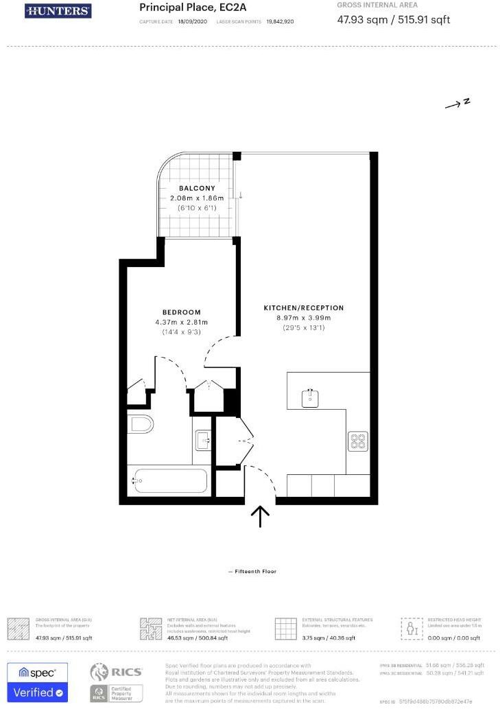
15th floor apartment with private south-west facing terrace
Set high on the 15th floor of Principal Tower, this one-bedroom apartment offers sweeping city views and a private south-west facing terrace. The apartment’s contemporary interior uses premium materials — figured sycamore kitchen veneer and bespoke marble finishes — and benefits from underfloor heating and generous built-in storage. At about 515 sq ft the layout is open-plan and efficient, suited to a single occupant or couple seeking a low-maintenance central apartment with strong rental appeal.
Residents have access to an extensive amenity package including 24-hour concierge, gym, pool, cinema room and resident lounge — features that support both lifestyle living and short- or long-term letting. Transport links are excellent with Liverpool Street a short walk away and Shoreditch’s restaurants, cafes and boutiques moments from the building. Broadband and mobile signal are excellent for urban renters and professionals.
Buyers should note this is a leasehold property (long lease remaining) with a relatively high ground rent of £550 and a community heating scheme as the main heating source. The apartment’s room sizes are average rather than oversized, and the wider area records very high crime levels — factors to weigh for owner-occupiers or tenants. Overall, this is a high-spec city flat in a landmark development that will suit investors looking for a premium-let or buyers wanting a central, low-maintenance pied-à-terre.
1 bedroom apartment for sale in Principal Tower, 2 Principal Place, London, EC2A 2FE, EC2A — £800,000 • 1 bed • 1 bath • 538 ft²
1 bedroom apartment for sale in Principal Tower, Worship Street, London, EC2A — £770,000 • 1 bed • 1 bath • 538 ft²
2 bedroom apartment for sale in Principal Place, London, EC2A — £1,100,000 • 2 bed • 2 bath • 763 ft²
1 bedroom apartment for sale in Principal Place, EC2A — £700,000 • 1 bed • 1 bath • 540 ft²
1 bedroom apartment for sale in Worship Street, London, EC2A — £900,000 • 1 bed • 1 bath • 530 ft²
2 bedroom flat for sale in Worship Street London EC2A — £1,300,000 • 2 bed • 2 bath • 876 ft²


















































