PE10 0WS - 3 bedroom detached house for sale in Newton Abbot Way, Bour…

View on Property Piper

3 bedroom detached house for sale in Newton Abbot Way, Bourne, PE10

Summary - 1, Newton Abbot Way PE10 0WS

3 bed 2 bath Detached

**Standout Features:**
- Spacious detached family home
- 3 double bedrooms with ensuite in master
- Light-filled dual-aspect lounge
- Contemporary breakfast kitchen with utility room
- Conservatory leading to rear garden
- Ample parking: garage plus driveway for 2-3 vehicles
- Situated in a quiet, affluent area with very low crime rates
- Close to highly-rated schools

**Summary:**
Discover a charming, modern detached family home, perfect for those seeking comfort and space in a serene, affluent neighborhood. This inviting property features three generously sized double bedrooms, including a master suite with ensuite shower room, along with a stylish family bathroom. The heart of the home boasts a contemporary kitchen diner, equipped with modern appliances, a separate utility room, and enjoys seamless access to a bright conservatory that opens up to the garden—ideal for entertaining or family gatherings.

Parking is a breeze with an attached garage and additional driveway space that surpasses many comparable homes in the desirable Elsea Park development. This property is nestled in a picturesque area with excellent broadband and mobile connectivity, offering an attractive opportunity for families and investors alike. However, it’s important to note that prospective buyers should verify all services and possibly commission a survey before finalizing an offer.

Don’t miss out on this rare gem that beautifully combines space, modern features, and an enviable location—a wonderful place to create lasting memories!

Property Details

Brochure Descriptions

Image Descriptions

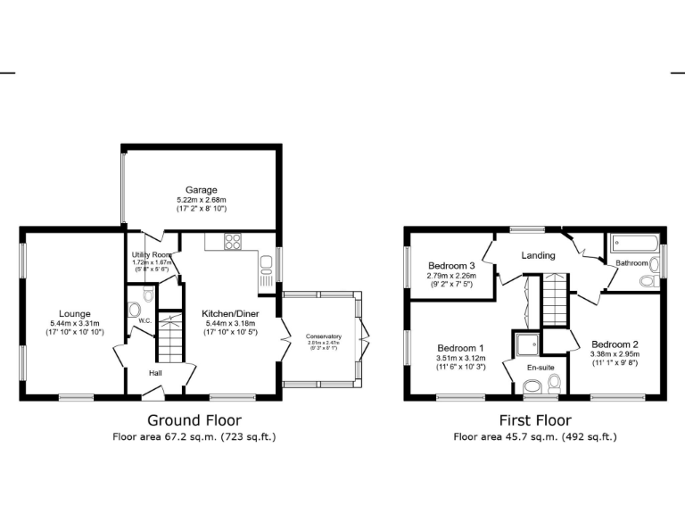
Floorplan Description

Rooms

Textual Property Features

Detected Visual Features

EPC Details

Nearby Schools

Nearest Bars And Restaurants

,,,,}

Nearest General Shops

,,}

Nearest Grocery shops

,,}

Nearest Supermarkets

,,}

Nearest Religious buildings

,,}

Nearest Medical buildings

,,,}

Nearest Leisure Facilities

,,,,}

Nearest Tourist attractions

,,}

Nearest Train stations

,,,,}

Nearest Bus stations and stops

,,,,}

Nearest Hotels

,,}

Tags

Local Market Stats

Similar Properties

Meta

High Res Images

Compatible Images

Low res Images

Thumbnails

Raw Images

High Res Floorplan Images

Compatible Floorplan Images

Low res Floorplan Images

FloorplanImages Thumbnail

Raw Floorplan Images