Chain-free three-bed home backing onto allotments, walking distance to Norwich centre.
Three-bedroom Victorian mid-terrace with period red brick facade
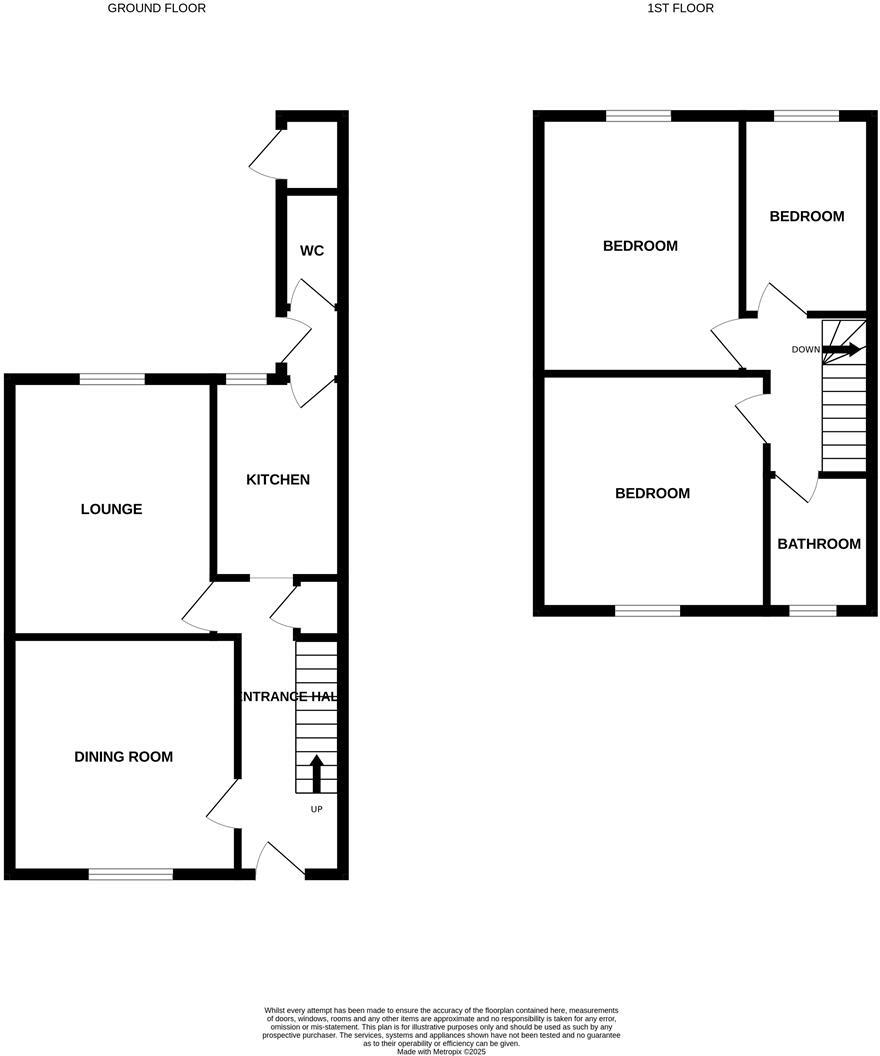
A well-proportioned Victorian mid-terrace offering three bedrooms and a large rear garden backing onto allotments. The house retains period character externally, with red brick façade, sash-style windows and chimney stacks, while the interior is presented in good order with a separate lounge and dining room, fitted kitchen and ground-floor WC.
This freehold home is chain free and ready for a family looking for central Norwich convenience: it’s within walking distance of the city centre, local shops, pubs and schools. Gas central heating, double glazing and fast full-fibre broadband are already in place, and the rear garden provides private outdoor space and a brick-built storage shed with rear access to the allotments.
Notable practical points: the property sits in an area with above-average crime and higher deprivation indicators, and the plot is relatively small at the front. The house is a solid-brick build from the early 20th century with no known cavity insulation (assumed), so buyers considering energy upgrades or wall insulation should factor that in. Overall, it suits families seeking central location, outdoor space and scope to personalise or improve energy performance.
Early viewing is recommended for buyers wanting a period terraced home near Norwich city centre with a sizeable rear garden and immediate vacant possession.
3 bedroom terraced house for sale in Beaconsfield Road, Norwich, NR3 — £200,000 • 3 bed • 1 bath • 797 ft²
3 bedroom terraced house for sale in Gertrude Road, Norwich, NR3 — £185,000 • 3 bed • 1 bath • 732 ft²
3 bedroom terraced house for sale in Albany Road, Norwich, Norfolk, NR3 — £325,000 • 3 bed • 1 bath • 784 ft²
3 bedroom terraced house for sale in Spencer Street, Norwich, NR3 — £240,000 • 3 bed • 1 bath • 776 ft²
3 bedroom terraced house for sale in Spencer Street, Norwich, NR3 — £210,000 • 3 bed • 1 bath • 754 ft²
3 bedroom terraced house for sale in Millers Lane, Norwich, NR3 — £230,000 • 3 bed • 2 bath • 864 ft²










































































































