Large plot and countryside views — ideal for a renovation or extension project.
No onward chain — immediate vacant possession
Requires full modernisation throughout, including likely roof attention
Large private rear garden with open countryside views
Driveway parking for three to four vehicles
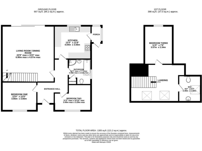
Generous, flexible internal layout with loft conversion potential
Upper room currently fails modern bedroom regulations
EPC rating E49; Council Tax Band E (£2,691.38)
Approx 1,238 sq ft gross internal area
This detached two-bedroom dormer bungalow sits in peaceful Norton and is offered with no onward chain — ideal for someone seeking a countryside project with immediate possession. The house occupies a large plot with a private, enclosed rear garden and far-reaching meadow views, providing scope for garden adaptation, extension or conversion subject to permission.
Internally the layout is generous and flexible: an extended living room with dining area and sliding doors to the garden, a kitchen with breakfast space, two double ground-floor bedrooms, and a substantial first-floor landing that could be reconfigured into a master suite. Several rooms offer practical space for home working or family use.
The property requires full modernisation throughout. Many fittings are dated (1970s ceiling tiles, older kitchen and bathroom), the roof shows signs of moss/damage and one upper room does not meet current regulations for use as a bedroom. The energy rating is E49 and the property is in Council Tax Band E, so buyers should allow budget for improvement and efficiency upgrades.
Practical benefits include driveway parking for multiple vehicles, mains gas central heating with boiler and radiators, and sensible broadband options. The village location is within easy reach of Gloucester and Cheltenham, local primary schooling is within walking distance, and nearby transport and amenities support day-to-day life.
3 bedroom detached bungalow for sale in Tewkesbury Road, Norton, Gloucester, GL2 — £495,000 • 3 bed • 1 bath • 1377 ft²
3 bedroom detached house for sale in Lime Close, Norton, GL2 — £475,000 • 3 bed • 2 bath • 1076 ft²
5 bedroom detached house for sale in Lime Close, Norton, GL2 — £850,000 • 5 bed • 3 bath • 2768 ft²
2 bedroom detached bungalow for sale in Rissington Road, Tuffley, Gloucester, GL4 — £250,000 • 2 bed • 1 bath • 668 ft²
2 bedroom detached bungalow for sale in The Piece, Churchdown, Gloucester, GL3 — £525,000 • 2 bed • 1 bath • 944 ft²
3 bedroom detached bungalow for sale in Church Road, Churchdown, Gloucester, GL3 — £435,000 • 3 bed • 2 bath • 1191 ft²






















































