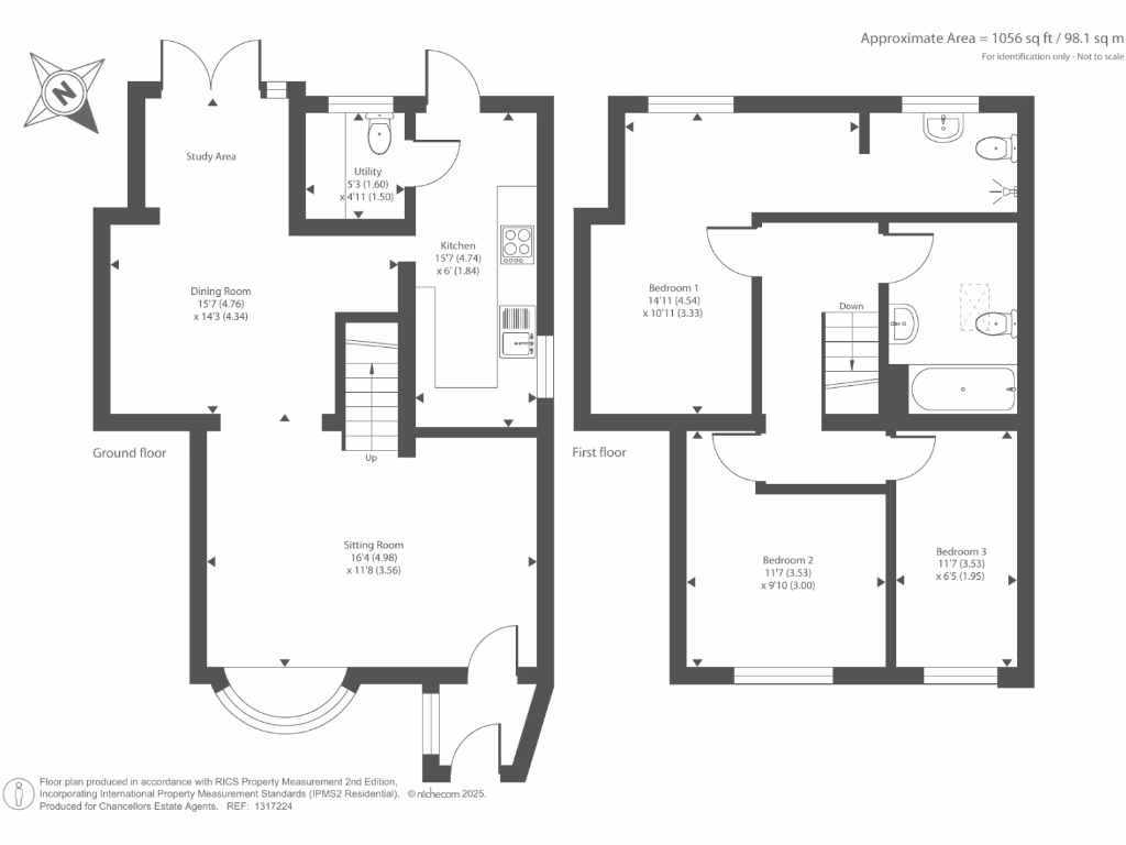
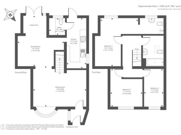
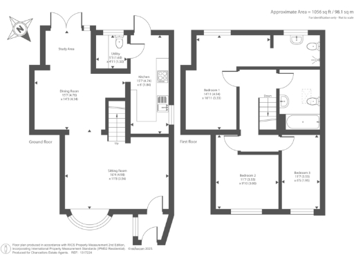
Charming three-bedroom cottage with period features and a private garden, chain free..
- Character cottage with exposed brick, beams and bay window
- Log burner in lounge for cosy, efficient heating
- Kitchen with AGA plus separate utility room
- French doors from dining area to landscaped garden
- Principal bedroom with en-suite; three toilets overall
- Solid brick walls (assumed no cavity insulation) may need upgrading
- Double glazing present but installation date unknown
- Freehold, chain free; approx 1,056 sq ft, moderate council tax
Daniella Cottage is a characterful three-bedroom semi detached cottage in Windlesham, blending original features with everyday comforts. Exposed brick, beams and a bay window create a cosy living space centred on a working log burner. The kitchen includes an AGA and a separate utility room, while French doors from the dining area lead to a well-landscaped garden and stone driveway.
The principal bedroom has an en-suite shower room; there are two further bedrooms and three toilets in total, useful for families or visitors. The property is an average-sized home (approx. 1,056 sq ft) with double glazing installed at an unknown date, mains gas boiler and radiator heating, and is offered freehold and chain free.
Buyers should note this is an older property (constructed before 1900) with solid brick walls where insulation is assumed to be absent. That traditional construction gives period character but may require improvement for modern thermal efficiency. Overall the house suits a family seeking village access, good local schools, and a comfortable, characterful home with scope to upgrade insulation and some systems over time.
3 bedroom cottage for sale in Chobham, Surrey, GU24 — £635,000 • 3 bed • 1 bath • 883 ft²
2 bedroom terraced house for sale in Sturt Meadow Lane, Haslemere, GU27 — £435,000 • 2 bed • 1 bath • 626 ft²
3 bedroom detached house for sale in Woodside Road, Chiddingfold, Surrey, GU8 — £275,000 • 3 bed • 1 bath • 642 ft²
3 bedroom semi-detached house for sale in School Lane, Windlesham, GU20 — £700,000 • 3 bed • 1 bath • 1398 ft²
3 bedroom bungalow for sale in Woodlands Lane, Windlesham, Surrey, GU20 — £900,000 • 3 bed • 1 bath • 1742 ft²
3 bedroom semi-detached house for sale in Copse Way, Wrecclesham, Farnham, Surrey, GU10 — £825,000 • 3 bed • 2 bath • 1347 ft²






























































































































