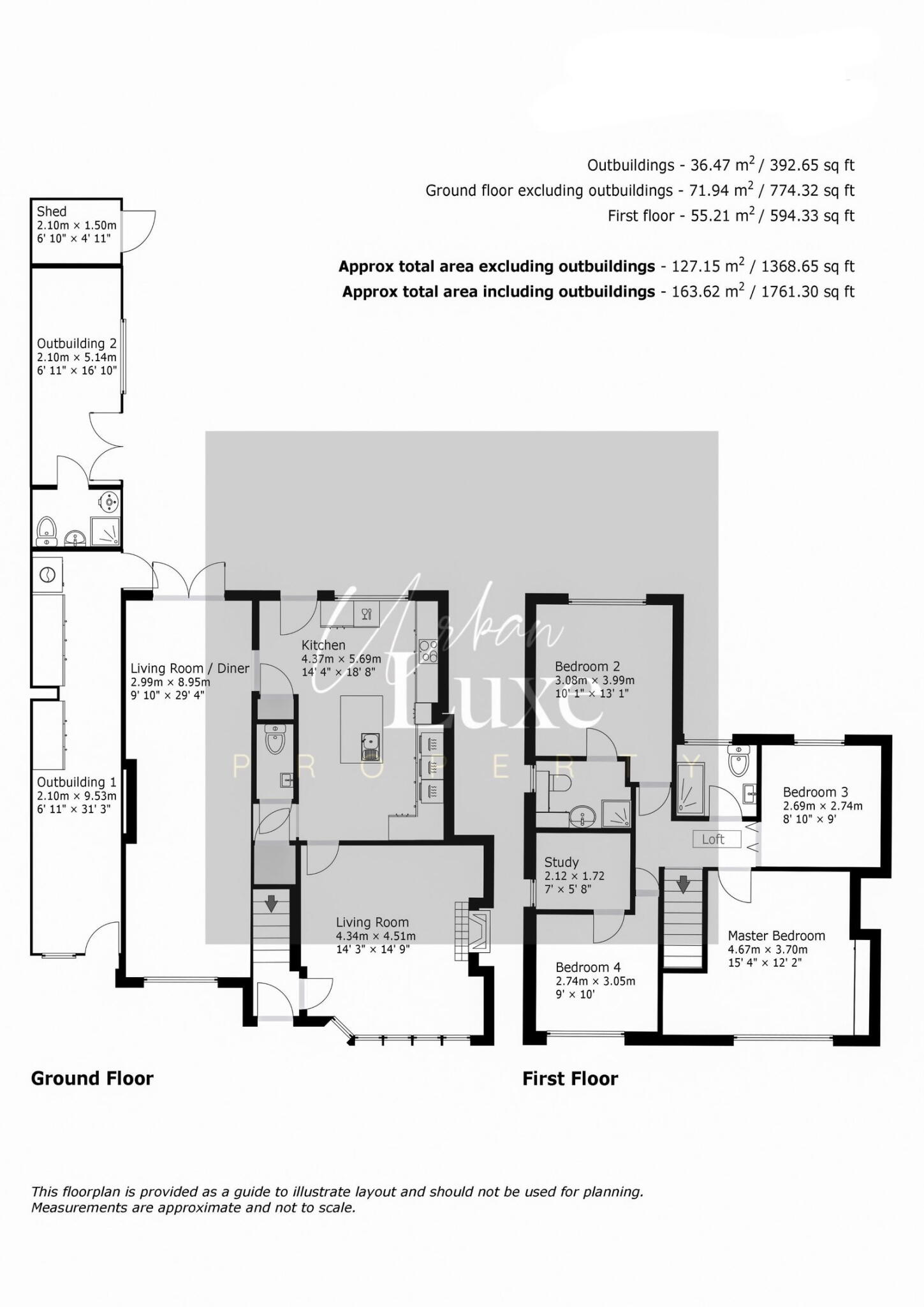
Five-bedroom semi with annexe potential, parking for four and private walled garden..
Modern kitchen with island and three Bosch ovens
Private mature walled garden with French doors access
Annexe-style room with shower; plumbing for independent kitchen
Two ensuite shower rooms; plumbing ready for a third
Driveway parking for approximately four cars
Utility area with workshop/gym and independent entrance
Overall internal size classed as small for five bedrooms
Cavity walls likely uninsulated; EPC D and higher local crime rate
This extended semi-detached house in Baldock offers flexible family living with annexe potential. The heart of the home is a modern kitchen with a central island and high-spec Bosch appliances, opening to a private walled garden that’s ideal for children and outdoor entertaining. Driveway parking for around four cars and a separate utility area currently used as a workshop/gym add practical everyday space.
Upstairs provides four main bedrooms, two ensuite shower rooms and plumbing ready for a third ensuite — perfect for a growing family or multigenerational living. The rear annexe-style room already has a shower room and independent access; plumbing is in place to add heating and kitchen facilities to make it self-contained.
Notable positives include fast broadband, excellent mobile signal and straightforward commuter links via nearby A1 and Baldock station to London. Local primary and secondary schools have Good Ofsted ratings, supporting family life in the area.
Buyers should note material drawbacks: the overall internal size is described as small for five bedrooms, the property sits in a higher-crime area, and the cavity walls are assumed uninsulated. The EPC is D and the annexe requires finishing works (radiators/kitchen) to be fully independent. These factors point to potential retrofit or improvement costs for energy efficiency and security.
4 bedroom semi-detached house for sale in Grosvenor Road West, Baldock, SG7 — £650,000 • 4 bed • 2 bath • 872 ft²
4 bedroom semi-detached house for sale in Chilvers Bank, Baldock, SG7 — £550,000 • 4 bed • 2 bath • 1225 ft²
3 bedroom semi-detached house for sale in Pryor Road, Baldock, SG7 — £375,000 • 3 bed • 1 bath • 675 ft²
3 bedroom detached house for sale in Westell Close, Baldock, SG7 — £500,000 • 3 bed • 2 bath • 5974 ft²
4 bedroom semi-detached house for sale in Wynn Close, BALDOCK, SG7 — £475,000 • 4 bed • 2 bath • 7965 ft²
3 bedroom semi-detached house for sale in Grosvenor Road West, Baldock, SG7 — £600,000 • 3 bed • 1 bath • 1079 ft²










































































