Comfortable single-storey living with garden and loft potential.
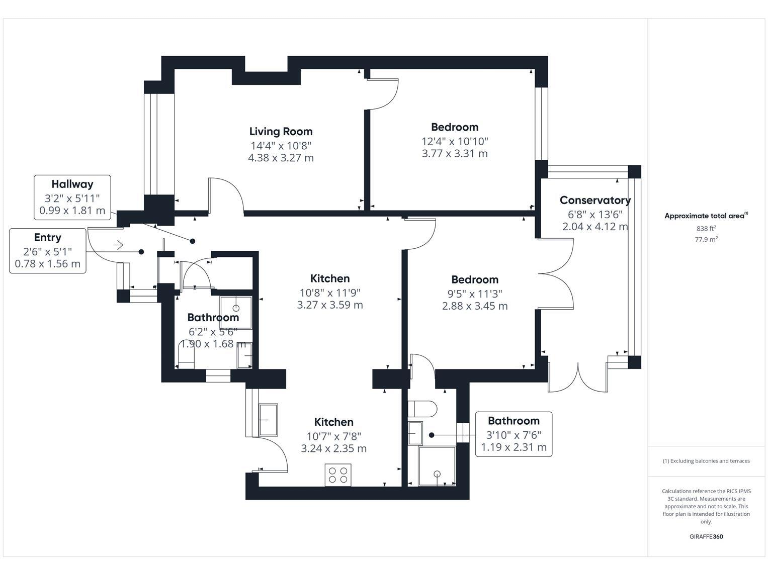
Two double bedrooms, main bedroom with private en suite
Spacious kitchen/diner and bright conservatory overlooking garden
Mature, private rear garden with established planting
Block-paved driveway providing off-street parking
Loft partially boarded with Velux windows; potential to convert (STPP)
Roof and exterior need modernization and maintenance
Freehold; good-sized plot in sought-after Bedgrove area
Excellent local schools, shops, transport links
A well-situated two-bedroom semi-detached bungalow in Bedgrove, offering comfortable single-storey living and strong local amenities ideal for families or downsizers. The bright living room with a fireplace and a modern kitchen/diner lead through to a conservatory that opens onto a mature, private garden — a pleasant outdoor space for children and gardening.
The main bedroom benefits from a private en suite and direct access to the conservatory; a further double bedroom and a separate shower room add flexibility. Practical extras include a block-paved driveway for off-street parking, loft storage with partial boarding and Velux windows, and mains services. The property is freehold and sits within easy reach of well-regarded primary and secondary schools, local shops, and good road and rail links to central Aylesbury and beyond.
Buyers should note the bungalow dates from the 1950s and, while the kitchen is modern, the roof and exterior need updating which will require budget and works. There is clear scope to improve and extend into the loft (subject to planning) to increase living space and future value. Overall this is a straightforward, comfortable home with realistic renovation potential in a very desirable Bedgrove location.
3 bedroom detached bungalow for sale in Corfe Close, Aylesbury, HP21 — £630,000 • 3 bed • 1 bath • 1244 ft²
3 bedroom semi-detached bungalow for sale in Kendal Close, AYLESBURY, HP21 — £475,000 • 3 bed • 2 bath • 1157 ft²
3 bedroom detached bungalow for sale in Corfe Close, Aylesbury, HP21 — £630,000 • 3 bed • 1 bath • 1037 ft²
3 bedroom detached bungalow for sale in Ingram Avenue, Aylesbury, HP21 — £460,000 • 3 bed • 1 bath • 797 ft²
2 bedroom semi-detached bungalow for sale in The Cedars, Aylesbury, HP22 — £485,000 • 2 bed • 1 bath • 866 ft²
2 bedroom detached bungalow for sale in Craigwell Avenue, Aylesbury, Buckinghamshire, HP21 — £475,000 • 2 bed • 1 bath • 1208 ft²






























































