RG27 8JZ - Land for sale in Reading Road, Mattingley, RG27

View on Property Piper

Land for sale in Reading Road, Mattingley, RG27

Summary - Reading Road, Mattingley, RG27 RG27 8JZ

8 bed 9 bath Land

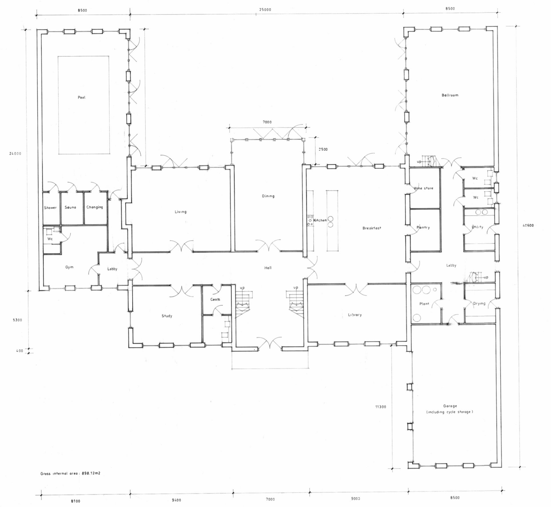
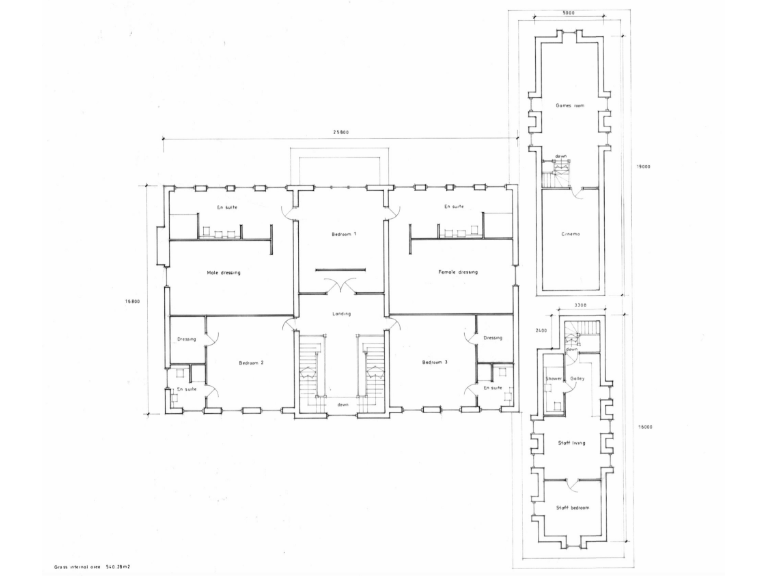
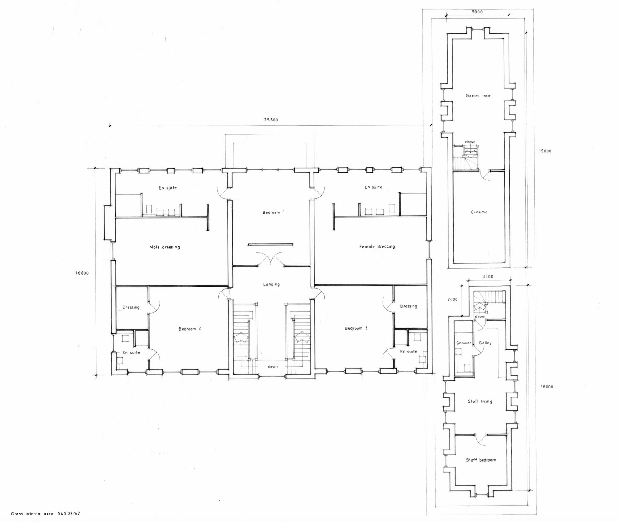
Consent granted for an 18,000 sq ft bespoke family house on a huge private plot.
3.3 acres backing private woodland
A rare, highly private 3.3-acre plot on Reading Road with planning permission (Ref: 24/00762/FUL) for an 18,000 sq ft replacement dwelling. The proposed Georgian‑Revival design offers grand reception spaces, a ballroom, pool, cinema, gym, staff accommodation and extensive en‑suite bedrooms — ideal for a large, multi‑generational family seeking bespoke luxury in the countryside.

The consented scheme includes modern environmental systems: ground‑source heat pump and rooftop solar panels, underfloor heating and a mix of radiators. The site backs onto private woodland, has landscaped gardens and a triple garage; excellent mobile signal and fast broadband support home working and connectivity.

This sale is for the freehold land with planning only; the purchaser must appoint their own builder/contractor to carry out the build. Buyers should factor build costs, professional fees and on‑site project management into the budget. Council tax for the finished house is expected to be quite expensive and the existing EPC rating for the site is F.

Location benefits include village amenities, strong local schools, country pursuits nearby and easy commuter access — Winchfield, Hook and Reading stations reach London in under an hour. This plot suits a buyer seeking to deliver a large, custom country home with contemporary energy systems in an affluent, low‑crime area.

Property Details

Image Descriptions

Floorplan Description

Rooms

Textual Property Features

Target Audience

AI Tags

Detected Visual Features

EPC Details

Nearby Schools

Nearest Bars And Restaurants

,,,,}

Nearest General Shops

,,}

Nearest Grocery shops

,,}

Nearest Supermarkets

,,}

Nearest Religious buildings

,,}

Nearest Medical buildings

,,,}

Nearest Airports

}

Nearest Leisure Facilities

,,,,}

Nearest Tourist attractions

,,}

Nearest Train stations

,,,,}

Nearest Bus stations and stops

,,,,}

Nearest Hotels

,,}

Tags

Local Market Stats

Similar Properties

Meta

High Res Images

Compatible Images

Low res Images

Thumbnails

Raw Images

High Res Floorplan Images

Compatible Floorplan Images

Low res Floorplan Images

FloorplanImages Thumbnail

Raw Floorplan Images