Chain-free one-bed with balcony and parking, minutes from Newbury Park station..
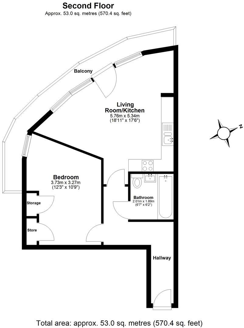
- Chain free one-bedroom apartment, approx. 570 sq ft
- Wrap-around balcony with wide suburban and skyline views
- Allocated underground off-street parking space included
- Service charge approx. £2,680pa; ground rent £200pa
- Lease length c.102 years remaining — good security
- Electric room heaters (no central gas) — potentially higher bills
- Slow local broadband speeds; higher-than-average local crime
- Seconds from Newbury Park station and local shops
A bright, chain-free one-bedroom apartment in Memorial Heights, ideal for first-time buyers or buy-to-let investors. The open-plan living room benefits from large windows and a wrap-around balcony, giving pleasant outlooks and plenty of natural light. The layout is practical with a double bedroom, compact bathroom and an L-shaped reception/kitchen across approximately 570 sq ft.
Practical extras include an allocated underground parking space, secure communal entrance, lift access and communal landscaped areas. The property sits a short walk from Newbury Park station and local shops, offering quick Central Line links to central London and everyday conveniences on the doorstep.
Buyers should note material running costs: an annual service charge around £2,680 and ground rent of £200. Heating is electric with room heaters rather than a communal gas system, which can mean higher energy bills. Broadband speeds in the area are reported as slow and local crime levels are higher than average, factors to consider for rental appeal or personal security planning.
Overall this modern 2007–2011 build presents a low-maintenance home with immediate transport and amenity access, good lease length (about 102 years remaining) and clear potential for a straightforward rental or owner-occupier purchase, provided buyers factor in service charges, energy costs and local area considerations.
1 bedroom apartment for sale in Memorial Heights, Monarch Way, Newbury Park, IG2 — £250,000 • 1 bed • 1 bath • 498 ft²
2 bedroom apartment for sale in Memorial Heights, Newbury Park, IG2 — £275,000 • 2 bed • 2 bath • 669 ft²
2 bedroom apartment for sale in Monarch Way, Ilford, IG2 — £350,000 • 2 bed • 2 bath • 657 ft²
1 bedroom apartment for sale in Monarch Way, Newbury Park, IG2 — £220,000 • 1 bed • 1 bath • 474 ft²
2 bedroom apartment for sale in Memorial Heights, Monarch Way, Newbury Park, IG2 — £300,000 • 2 bed • 2 bath • 577 ft²
1 bedroom apartment for sale in Royal Crescent, Newbury Park, IG2 — £250,000 • 1 bed • 1 bath • 485 ft²






















































