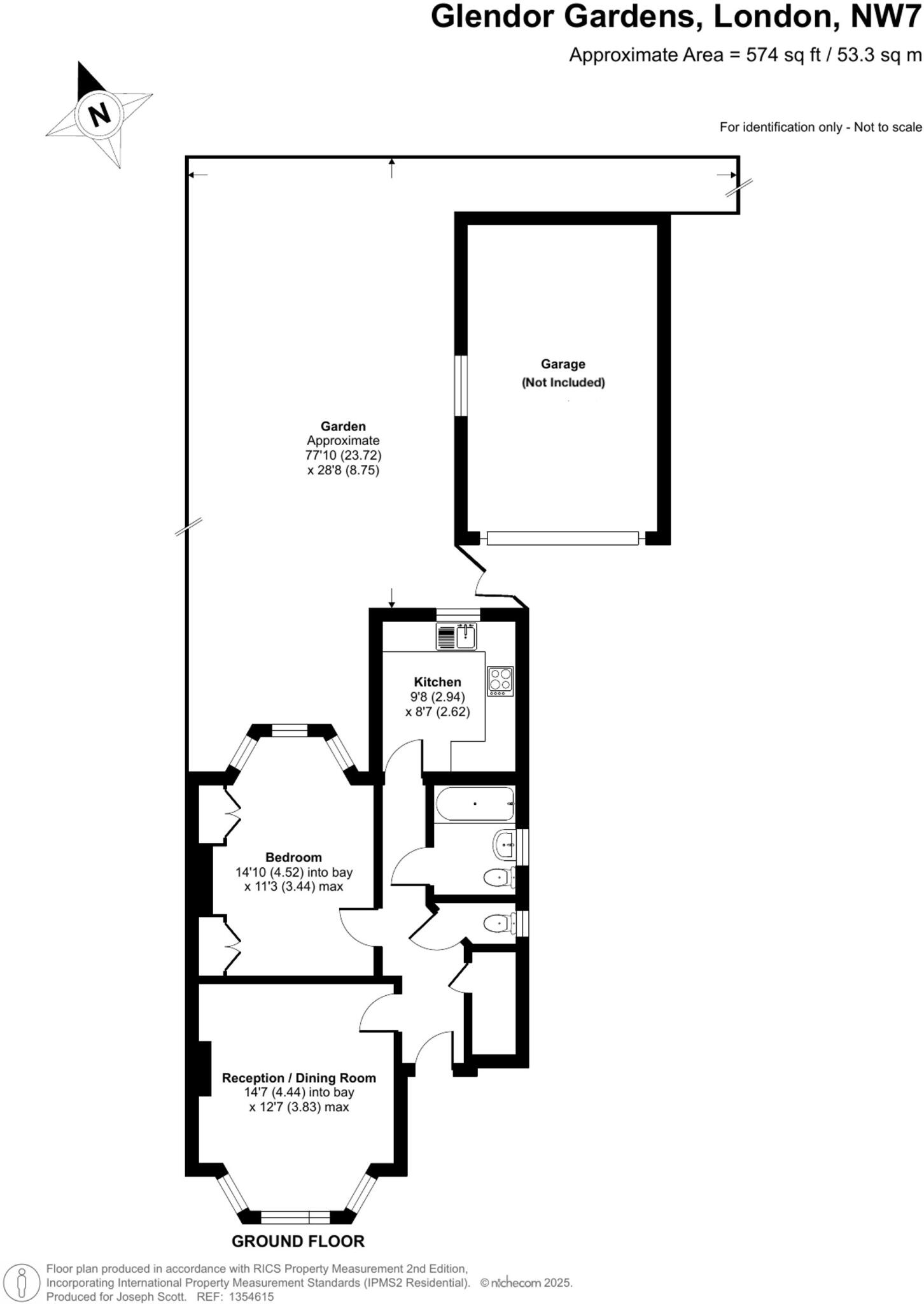
Private garden and parking close to Thameslink station.
Chain-free ground-floor maisonette with private rear garden
This chain-free, ground-floor one-bedroom maisonette offers a private rear garden and generous off-street parking for multiple cars — rare for the area. The reception room is bright and the layout includes a separate kitchen, large bathroom and additional WC, making day-to-day living practical and straightforward. Share of freehold tenure and a low council tax band add running-cost advantages for a first-time buyer.
The building dates from the early 20th century and retains period character externally, but the interior shows signs of age. The kitchen is dated and will need modernization; the solid brick walls are assumed uninsulated which could mean higher heating bills until improved. EPC rating D is middling and could be upgraded with targeted works.
Location is a clear selling point: 0.6 miles to Mill Hill Broadway Thameslink station, local shops and amenities close by, and good mobile signal. Note the area records higher crime levels, so assess security and commute priorities. Overall this home suits a first-time buyer seeking an affordable, characterful property with garden and parking, and scope to add value through renovation.
2 bedroom flat for sale in Milespit Hill, Mill Hill, London, NW7 — £365,000 • 2 bed • 1 bath • 687 ft²
1 bedroom flat for sale in Bunns Lane, Mill Hill, North West London NW7 — £330,000 • 1 bed • 1 bath • 537 ft²
2 bedroom maisonette for sale in The Fairway, London, NW7 — £340,000 • 2 bed • 1 bath • 786 ft²
2 bedroom maisonette for sale in Sylvan Avenue, London, NW7 — £510,000 • 2 bed • 2 bath • 806 ft²
1 bedroom apartment for sale in Goodwyn Avenue, Mill Hill, London, NW7 — £455,000 • 1 bed • 1 bath • 831 ft²
1 bedroom maisonette for sale in Hillside, Kingsbury, London, NW9 — £295,000 • 1 bed • 1 bath • 506 ft²


















































































