Comfortable dormer home minutes from the beach with garage and garden.
Chain free — ready for quick completion
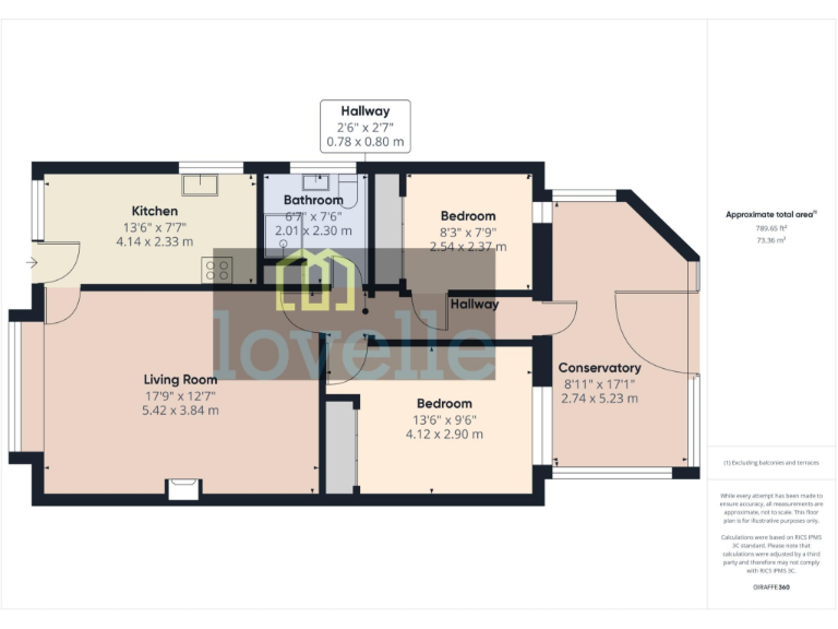
Set less than 500m from the beach, this two-bedroom detached bungalow offers single-floor living with useful additional dormer space. The layout includes a living room, conservatory, kitchen, two bedrooms and a shower room, with off-road parking leading to a detached garage. The plot is a decent size with a low-maintenance front garden and a generous rear garden suitable for entertaining or gardening.
The property is offered chain free and benefits from an EPC C rating and fast broadband — practical positives for downsizers or buyers seeking a weekend coastal base. The conservatory adds bright, flexible living space and the driveway plus garage provide secure parking and storage. Flooding risk is low and the local primary school is rated Good.
There are some limitations to note: room sizes are generally compact and the chalet/dormer element means some first-floor space is limited by roofline. The wider area shows indicators of deprivation and local crime levels are average; buyers should consider long-term resale factors for this postcode. Overall the home is well-maintained externally and suits buyers wanting straightforward, low-maintenance coastal living with potential to modernise interiors.
2 bedroom detached bungalow for sale in Hillside Avenue, Sutton on Sea, LN12 — £245,000 • 2 bed • 1 bath • 658 ft²
2 bedroom bungalow for sale in Camelot Gardens, Sutton-on-Sea, Mablethorpe, Lincolnshire, LN12 — £200,000 • 2 bed • 1 bath
2 bedroom bungalow for sale in Youlgrave Avenue, Sutton-on-Sea, Mablethorpe, Lincolnshire, LN12 — £230,000 • 2 bed • 1 bath • 1023 ft²
2 bedroom detached bungalow for sale in Wilmington Drive, Sutton-On-Sea, LN12 — £246,950 • 2 bed • 1 bath • 600 ft²
2 bedroom detached bungalow for sale in Harding Close, Sutton-On-Sea, Mablethorpe, LN12 — £210,000 • 2 bed • 1 bath • 761 ft²
2 bedroom bungalow for sale in Harding Close, Sutton-on-Sea, Mablethorpe, Lincolnshire, LN12 — £250,000 • 2 bed • 1 bath • 948 ft²










































































