DL14 6JD - 2 bedroom terraced house for sale in Seymour Street, Bishop…

View on Property Piper

2 bedroom terraced house for sale in Seymour Street, Bishop Auckland, DL14

Summary - 11 SEYMOUR STREET BISHOP AUCKLAND DL14 6JD

2 bed 1 bath Terraced

### Standout Features:
- **Price**: £70,000, ideal for first-time buyers or investors
- **Size**: 2-bedroom mid-terrace home with a total of 732 sqft
- **Condition**: Double-glazed windows, modern kitchen with integrated appliances
- **Location**: Short walking distance to Bishop Auckland town center
- **Local Amenities**: Close to schools, shops, and public transport routes
- **EPC Rating**: C

### Potential Concerns:
- **Area Classification**: Located in a deprived blue-collar neighborhood
- **Crime Rate**: Above average for the area
- **Heating & Insulation**: Boiler heating with assumed cavity wall without insulation

Nestled in a vibrant, yet economically challenged part of Bishop Auckland, this 2-bedroom mid-terrace home represents a fantastic opportunity for first-time buyers and savvy investors. Priced attractively at £70,000, this property features a modern kitchen with high-gloss cabinets, perfect for whipping up family meals, and a cozy living area ideal for relaxation.

While the home is equipped with double glazing and a reliable mains gas heating system, potential buyers should be aware that the lack of insulation may require future attention. The property sits in an area with a mix of amenities, including convenience stores, restaurants, and quality schools, ensuring a comfortable lifestyle. With its affordable council tax and proximity to the town center, this is a chance not to miss. Grab this opportunity to own a piece of Bishop Auckland before it's gone!

Property Details

Image Descriptions

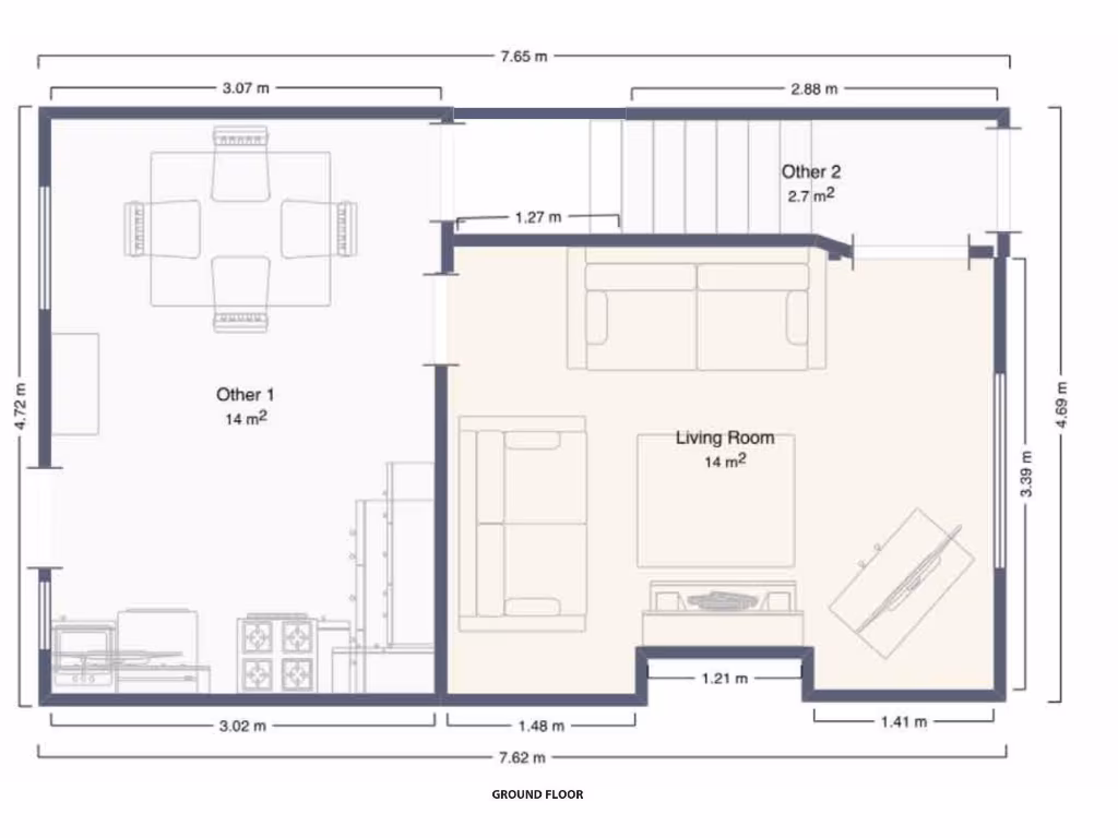
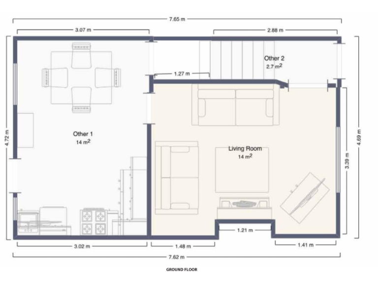
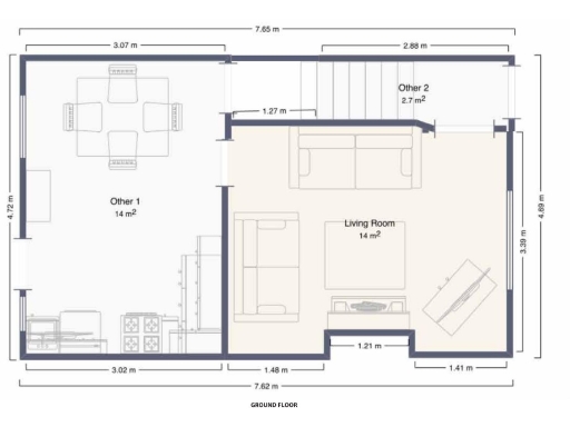
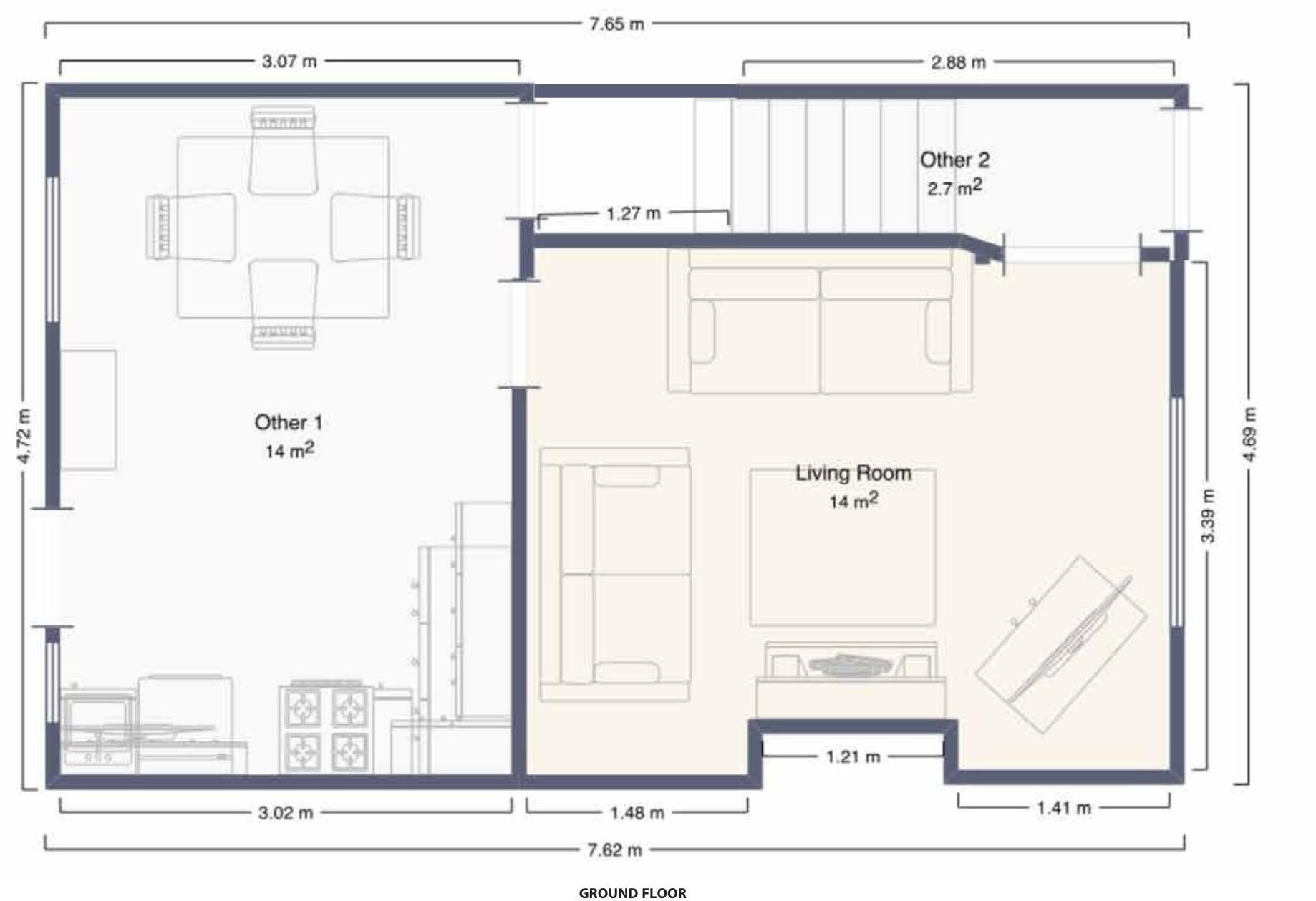
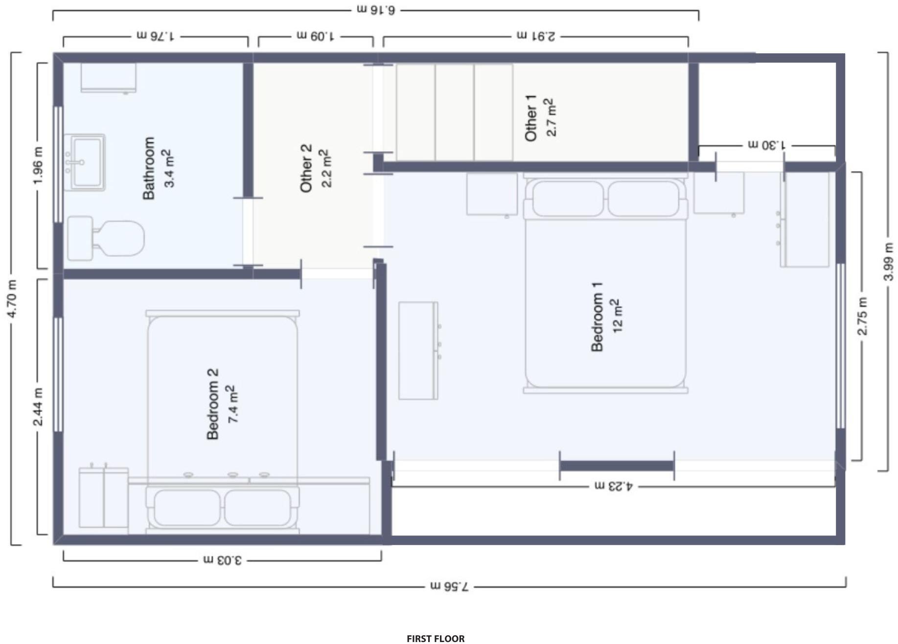
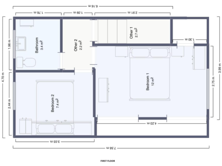
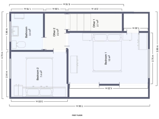
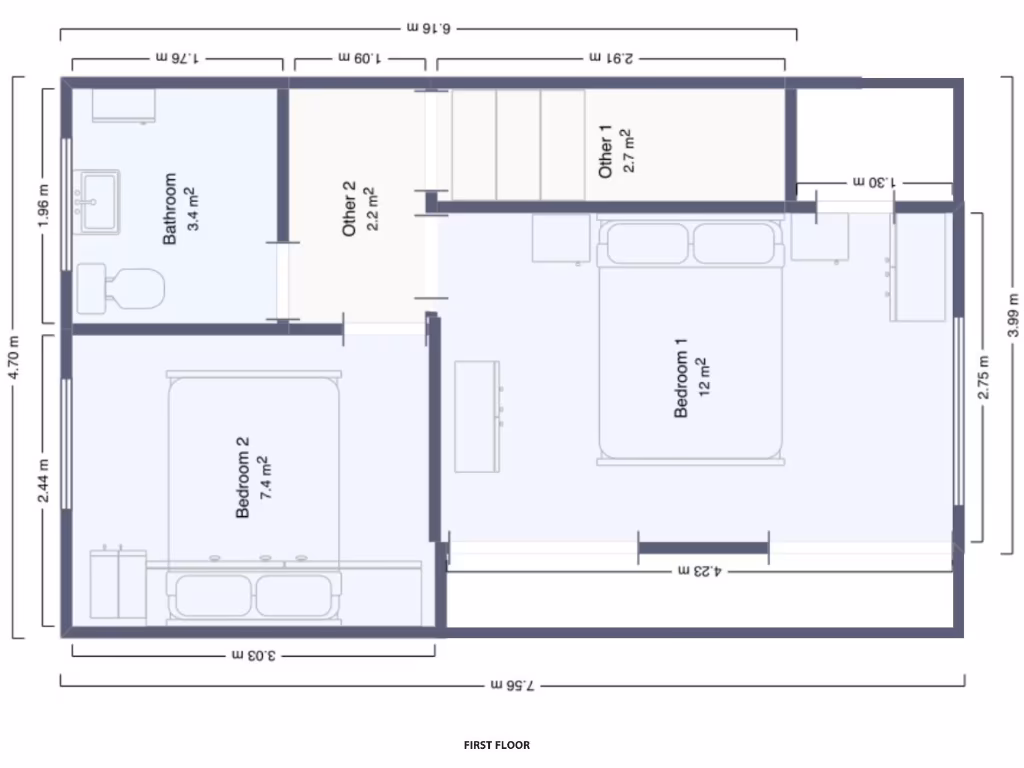
Floorplan Description

Rooms

Textual Property Features

Detected Visual Features

EPC Details

Nearby Schools

Nearest Bars And Restaurants

,,,,}

Nearest General Shops

,,}

Nearest Grocery shops

,,}

Nearest Supermarkets

,,}

Nearest Religious buildings

,,}

Nearest Medical buildings

,,,}

Nearest Leisure Facilities

,,,,}

Nearest Tourist attractions

,,}

Nearest Train stations

,,,,}

Nearest Bus stations and stops

,,,,}

Nearest Hotels

,,}

Tags

Local Market Stats

AirBnB Data

Similar Properties

Meta

High Res Images

Compatible Images

Low res Images

Thumbnails

Raw Images

High Res Floorplan Images

Compatible Floorplan Images

Low res Floorplan Images

FloorplanImages Thumbnail

Raw Floorplan Images