Exceptional 7‑bed Victorian villa with coach house and panoramic River Dee views.
Panoramic westerly views over the River Dee and Meadows
Detached coach house with garage for three and annexe potential
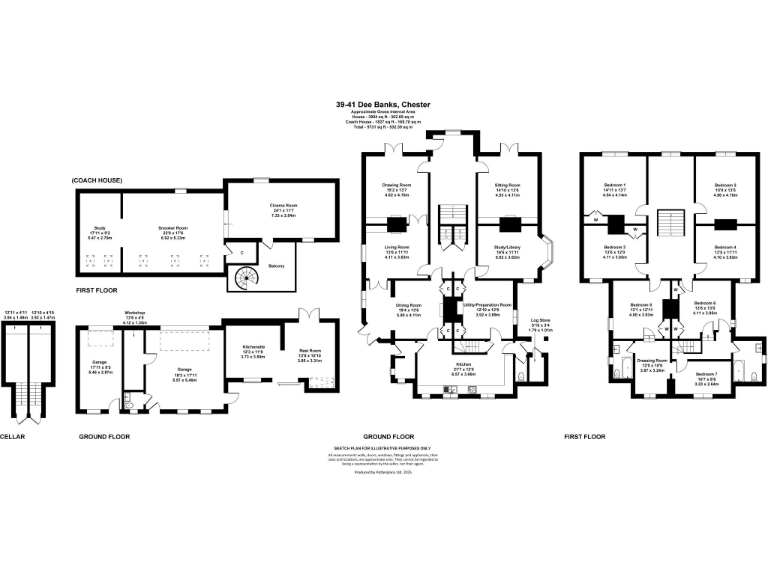
About 5,731 sq ft across main house and coach house
Large private walled gardens, greenhouse and patio entertaining areas
Built 1851 with strong period features and high ceilings throughout
Constructed of solid brick; no assumed wall insulation, modernisation needed
Only two bathrooms for seven bedrooms; scope for additional en-suites
Conservation Area status and annual unadopted lane maintenance charge
Available for the first time in over a century, this 1851 Victorian villa on Dee Banks combines substantial period character with sweeping westerly views over the River Dee and meadows. The main house and detached coach house total about 5,731 sq ft, offering generous reception rooms, seven bedrooms and extensive scope to reconfigure and modernise to contemporary family living standards.
The coach house is a genuine asset: garaging for three vehicles, a cinema room, snooker room and study, and scope to develop a self-contained annexe for guests or longer-term rental income. Outside, private walled gardens, mature trees, greenhouse and patio areas create a secluded riverside setting ideal for entertaining and family activities.
Practical considerations are clear and important. The property sits within a Conservation Area and is constructed of original solid brick (no assumed cavity insulation). It requires modernisation in parts and there is potential to add en-suites and improved heating or insulation. Council Tax is very expensive (Band H) and there is an annual charge for maintenance of the unadopted rear lane providing vehicular access.
This home will suit a buyer seeking a sizeable, characterful riverside residence with development potential — a family or buyer prepared to invest to unlock the property’s full value and panoramic river outlook.
7 bedroom semi-detached house for sale in Sandy Lane, Chester, Cheshire, CH3 — £1,500,000 • 7 bed • 3 bath • 5265 ft²
4 bedroom semi-detached house for sale in Sandy Lane, Chester, CH3 — £1,250,000 • 4 bed • 2 bath • 5331 ft²
3 bedroom detached house for sale in Dee Banks, Great Boughton, CH3 — £425,000 • 3 bed • 1 bath • 485 ft²
2 bedroom flat for sale in Clifton House, 29 Dee Banks, CH3 — £495,000 • 2 bed • 1 bath • 904 ft²
3 bedroom terraced house for sale in Dee Banks, Chester, CH3 — £340,000 • 3 bed • 1 bath • 1077 ft²
2 bedroom mews property for sale in Sandy Lane, Chester, Cheshire, CH3 — £550,000 • 2 bed • 2 bath • 1523 ft²














































































