LN4 2AU - 5 bedroom detached house for sale in Plough Hill, Potterhan…

View on Property Piper

5 bedroom detached house for sale in Plough Hill, Potterhanworth, LN4

Summary - Carr Dyke House,Plough Hill,Potterhanworth,LINCOLN,LN4 2AU LN4 2AU

5 bed 3 bath Detached

**Standout Features:**
- **Historic Charm**: Built in the 1700s, this character-rich detached cottage has been lovingly maintained by the same family since 1909.
- **Expansive Grounds**: Approximately 10 acres (STS), including paddocks and a large agricultural barn, offer immense flexibility for outdoor activities or equestrian uses.
- **Generous Living Space**: With five bedrooms and five reception areas, there is ample room for families, home offices, or guests.
- **Rural Location**: Nestled in the tranquil countryside between Potterhanworth and Washingborough, with easy access to local amenities and schools.
- **Additional Acreage Potential**: Raised opportunity for further land acquisition through negotiation.

**Summary:**
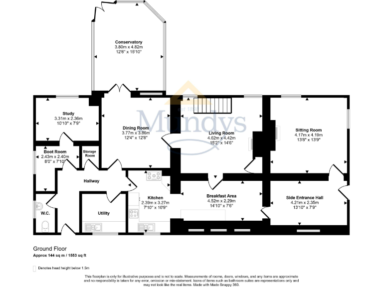
Discover a unique opportunity to own this delightful 5-bedroom detached cottage steeped in history and surrounded by stunning rural landscapes. With extensive grounds of approximately 10 acres, which include adjoining paddocks and a substantial agricultural barn, this property provides endless potential for outdoor enthusiasts or those looking to develop equestrian facilities. The generous living accommodation offers five spacious reception rooms, each brimming with character, perfect for family gatherings or peaceful retreats. The inviting kitchen/breakfast room and bright conservatory overlook the beautiful gardens, creating an idyllic setting for relaxation.

While the property boasts immense potential, it is important to note that it features an Energy Rating of E, which may necessitate future energy efficiency upgrades for some buyers. Coupled with slightly slow broadband speeds, this residence represents a blend of traditional charm and modern family living set within a low-crime rural environment. Act now, as properties of this kind are rare to come by—schedule your viewing today to fully appreciate this captivating retreat!

Property Details

Brochure Descriptions

Image Descriptions

Floorplan Description

Rooms

Textual Property Features

Detected Visual Features

Nearby Schools

Nearest Bars And Restaurants

,,,,}

Nearest General Shops

,,}

Nearest Grocery shops

,,}

Nearest Supermarkets

,,}

Nearest Religious buildings

,,}

Nearest Medical buildings

,,,}

Nearest Leisure Facilities

,,,,}

Nearest Tourist attractions

,,}

Nearest Train stations

,,,,}

Nearest Bus stations and stops

,,,,}

Nearest Hotels

,,}

Tags

Local Market Stats

Similar Properties

Meta

High Res Images

Compatible Images

Low res Images

Thumbnails

Raw Images

High Res Floorplan Images

Compatible Floorplan Images

Low res Floorplan Images

FloorplanImages Thumbnail

Raw Floorplan Images