Spacious rural family home with large garden and double garage.
Approximately 0.6-acre plot with panoramic open-field views
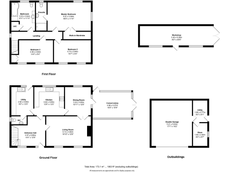
Set on about 0.6 acres (STMS) with uninterrupted panoramic field views, Homefields is a spacious three-bedroom detached home that balances rural privacy with practical, modern upgrades. The recently renovated kitchen, utility and family bathroom give immediate move-in comfort, while the conservatory and separate dining room provide flexible living and entertaining spaces for families.
The master suite is generous, with a walk-in wardrobe, ensuite and an accessibility lift to the dining room below. The living room’s feature fireplace and log burner create a warm focal point, and large wraparound gardens with mature trees and multiple seating areas extend living outdoors. A detached double garage (with power) plus workshop and gated brick-weave driveway provide generous storage and parking for multiple vehicles.
Practical considerations are clearly stated: the house uses oil-fired central heating with an older boiler and private drainage, and some glazing was installed before 2002. There is a medium flood risk for the area. Solar panels help reduce running costs, and fast broadband and reasonable mobile signal support modern working and connectivity.
This property suits families seeking space, privacy and countryside living with good rail links — Watlington station offers direct trains to Cambridge and London. While the home has been recently renovated in key areas, buyers should budget for standard maintenance and consider independent checks on services, drainage and flood-related protections.
3 bedroom detached house for sale in Fen Road, Magdalen, PE34 — £550,000 • 3 bed • 2 bath • 2485 ft²
3 bedroom detached bungalow for sale in Sluice Road, Wiggenhall St. Mary the Virgin, King's Lynn, Norfolk, PE34 — £475,000 • 3 bed • 2 bath • 1348 ft²
5 bedroom detached house for sale in Foldgate Lane, Wiggenhall St. Mary Magdalen, KING'S LYNN, PE34 — £750,000 • 5 bed • 4 bath • 3000 ft²
4 bedroom detached house for sale in Stow Road, Wiggenhall St. Mary Magdalen, PE34 — £450,000 • 4 bed • 3 bath • 3122 ft²
3 bedroom semi-detached house for sale in Park Crescent, Wiggenhall St. Mary Magdalen, PE34 — £225,000 • 3 bed • 1 bath • 1065 ft²
3 bedroom detached house for sale in Fen Lane, Pott Row, PE32 — £725,000 • 3 bed • 2 bath • 2740 ft²














































































































































































