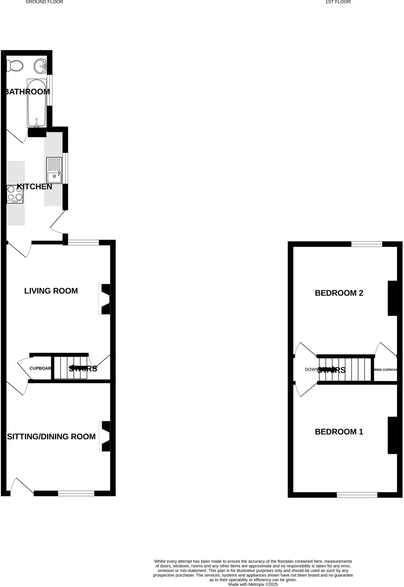
**Standout Features:**
- Charming Victorian terrace house
- Two spacious double bedrooms
- Two inviting reception rooms
- Newly fitted kitchen and modern bathroom
- Recent roof replacement
- Freehold ownership
- Low maintenance garden
- Council Tax Band A
- Chain free
**Concise Summary:**
Discover this beautifully presented Victorian terrace, perfect for first-time buyers and buy-to-let investors alike. This two-bedroom gem boasts generous living space with two reception rooms, a fitted kitchen, and a modern bathroom, ensuring comfort and convenience. Recent upgrades, including a new roof, fresh carpets, and freshly painted walls, allow for immediate move-in. The property also features delightful Victorian details, adding character and charm.
Set in the popular Birches Head area, it offers a low-maintenance garden for relaxation and outdoor enjoyment. With no upward chain, seize the opportunity to make this lovely house your home. While the area has its challenges and may be classified as deprived, it offers a fast broadbrand connection and easy access to local amenities and highly regarded schools, making it a fantastic investment for those seeking rental potential or a tranquil family space. Schedule a viewing today and envision the possibilities!
2 bedroom end of terrace house for sale in Turner Street, Birches Head, Stoke-on-Trent, ST1 — £90,000 • 2 bed • 1 bath • 688 ft²
2 bedroom terraced house for sale in Northwood Park Road, Stoke-on-Trent, Staffordshire, ST1 — £110,000 • 2 bed • 1 bath • 776 ft²
2 bedroom terraced house for sale in Turner Street, Birches Head, Stoke-On-Trent, ST1 6LT, ST1 — £115,000 • 2 bed • 1 bath • 1045 ft²
2 bedroom terraced house for sale in Nash Street, Newcastle, Staffordshire, ST5 — £120,000 • 2 bed • 1 bath
2 bedroom terraced house for sale in Stedman Street, Birches Head, Stoke-On-Trent, ST1 — £115,000 • 2 bed • 1 bath • 905 ft²
2 bedroom terraced house for sale in Jervis Street, Hanley, Stoke-on-Trent, Staffordshire, ST1 — £110,000 • 2 bed • 1 bath • 714 ft²






















































