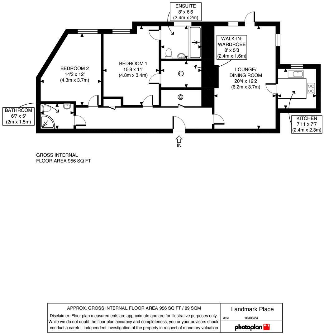
**Standout Features:**
- Bright ground floor apartment with two bedrooms and two shower rooms
- Spacious dual aspect living room leading to a private patio
- Modern kitchen with integrated appliances and stylish finishes
- Underfloor heating for year-round comfort
- Communal amenities including lounge, sunroom, and garden
- Dedicated House Manager for convenience
- Guest suite available for visitors
- Allocated off-street parking space
- Excellent local transport links, including Denham station
**Summary:**
Discover the ideal retirement retreat in this inviting two-bedroom ground floor apartment located in the serene country village of Denham Green. This beautifully presented residence features a generous double aspect living room that opens seamlessly onto a tranquil paved patio—perfect for enjoying morning coffee or evening relaxation. The modern kitchen is tastefully equipped with integrated appliances and bright finishes that enhance the spacious layout, while both bedrooms are designed for comfort, offering ample storage.
Enjoy a vibrant community atmosphere with amenities like a communal lounge, well-maintained landscaped gardens, and designated hobby rooms, fostering an active and engaging lifestyle. While the estimated service charge is above average at £5,519.75 annually, it covers essential services including heating, maintenance, and emergency support, providing you with peace of mind.
Set within reach of local amenities, including shops and bus routes, this apartment ensures convenience without sacrificing tranquility. Whether you're an investor looking for rental potential or a family seeking a cozy, low-maintenance home, this property offers exceptional value in an enviable location. Make this picturesque apartment your own and embrace a comfortable lifestyle in a supportive environment. Don't miss your chance to view this exceptional property—it's likely to attract attention!
2 bedroom apartment for sale in Moorfield Road, Denham, Uxbridge, UB9 — £360,000 • 2 bed • 2 bath • 757 ft²
2 bedroom apartment for sale in Moorfield Road, Denham, UB9 — £360,000 • 2 bed • 2 bath • 765 ft²
2 bedroom apartment for sale in Moorfield Road, Denham, UB9 5BY, UB9 — £350,000 • 2 bed • 2 bath • 926 ft²
1 bedroom apartment for sale in Landmark Place, North Orbital Road, Denham, Uxbridge, UB9 5HB, UB9 — £250,000 • 1 bed • 1 bath • 626 ft²
2 bedroom apartment for sale in Moorfield Road, Denham, Uxbridge, UB9 — £385,000 • 2 bed • 2 bath • 857 ft²
1 bedroom apartment for sale in Moorfield Road, Denham, UB9 — £265,000 • 1 bed • 1 bath • 603 ft²










































