Ready-to-use two-bed lodge with decking near beach and village amenities.
Fully furnished holiday lodge with kitchen equipment included
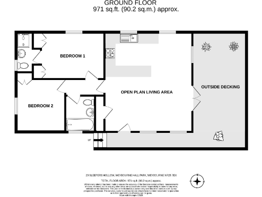
A fully furnished two-bedroom park home in the coastal village of Weybourne, presented as a luxurious holiday lodge with open-plan living and a sun deck. The layout is practical for short breaks or year-round leisure use, with two double bedrooms (one en-suite), a family bathroom and a well-equipped kitchen including integrated appliances.
The lodge sits within attractive grounds with garden areas all around, lockable storage and allocated off-street parking for two cars. UPVC double glazing and LPG central heating provide comfort, and double doors from the living area open onto the rear decking to capture coastal light and outdoor living.
Buyers should note important tenure and finance details: a new 25-year lease will be created and the maximum stay is limited to 28 days out of 36, so this is primarily for holiday use. Mortgage lenders commonly refuse lending on short-lease park homes, so purchase is likely to require cash or specialist lending. The annual pitch fee is £4,040 + VAT (includes council tax and grounds maintenance). Broadband speeds are slow, which may affect remote working.
2 bedroom park home for sale in 12 Weybourne Hall Park, NR25 — £185,000 • 2 bed • 2 bath • 785 ft²
2 bedroom park home for sale in 24 Weybourne Hall Park, NR25 — £215,000 • 2 bed • 2 bath • 826 ft²
2 bedroom lodge for sale in Sandy Hill Lane, Weybourne, NR25 — £269,950 • 2 bed • 2 bath • 1316 ft²
3 bedroom cottage for sale in A stunning brick-and-flint retreat nestled in the heart of the charming coastal village of Weybourne., NR25 — £525,000 • 3 bed • 2 bath • 1496 ft²
2 bedroom mobile home for sale in Cromer Road, East Runton, NR27 — £60,000 • 2 bed • 2 bath • 1052 ft²
2 bedroom mobile home for sale in Upper Sheringham, Sheringham, NR26 — £79,995 • 2 bed • 2 bath • 468 ft²


























































