Renovation opportunity minutes from town and transport links.
Cash buyers only — sale requires cash purchase
Spacious gated driveway and detached single garage
Large plot with private front, side and rear gardens
Three bedrooms; two doubles and a generous single
Needs general renovation and modernisation throughout
Cavity walls assumed uninsulated — energy upgrades likely
Chain free and minutes from town centre and train station
No flood risk; council tax is low
Set on a generous plot less than a mile from Shrewsbury town centre and the train station, this 1930s semi-detached house offers clear potential for a family or investor prepared to refurbish. The property includes a gated block-paved driveway, detached garage, private gardens and useful outbuildings — rare space so close to town. Double glazing and gas central heating are already in place.
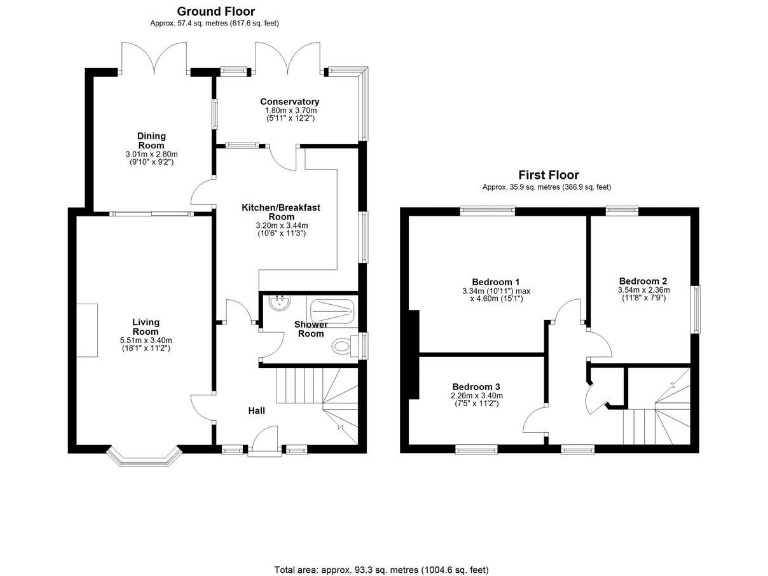
Internally the layout is traditional and practical: a bay-front living room with fireplace, a kitchen/breakfast room leading to a conservatory, separate dining room, ground-floor shower room and three first-floor bedrooms. Room proportions are sensible for a family, and the extended footprint creates scope to modernise, reconfigure or extend further (subject to planning).
Important negatives are straightforward: the house needs general renovation throughout and the solid walls are assumed to lack insulation, so energy upgrades will be required. The sale is for cash buyers only, and the property is sold chain free — suitable for buyers who can fund and manage a renovation. Crime levels and area deprivation are average.
This is a practical long-term purchase for someone prioritising plot, location and scope over immediate turnkey condition. With improvements, it should deliver comfortable family living or a rental return given fast broadband, excellent mobile signal and proximity to good schools and town amenities.
3 bedroom semi-detached house for sale in Old Heath, Ditherington, Shrewsbury, Shropshire, SY1 — £180,000 • 3 bed • 1 bath
3 bedroom semi-detached house for sale in Harlescott Crescent, Shrewsbury, SY1 — £299,950 • 3 bed • 1 bath • 1112 ft²
3 bedroom semi-detached house for sale in Coton Mount, Coton Hill Shrewsbury, SY1 — £265,000 • 3 bed • 1 bath • 686 ft²
3 bedroom semi-detached house for sale in Sundorne Road, Shrewsbury, SY1 — £235,000 • 3 bed • 1 bath • 901 ft²
3 bedroom semi-detached house for sale in Wood Street, Greenfields, Shrewsbury, SY1 — £210,000 • 3 bed • 1 bath • 857 ft²
3 bedroom detached house for sale in Longden Road, Belle Vue, Shrewsbury, SY3 — £325,000 • 3 bed • 1 bath • 1131 ft²


























































