Affordable three-bedroom with huge garden and off-street parking, sold at auction.
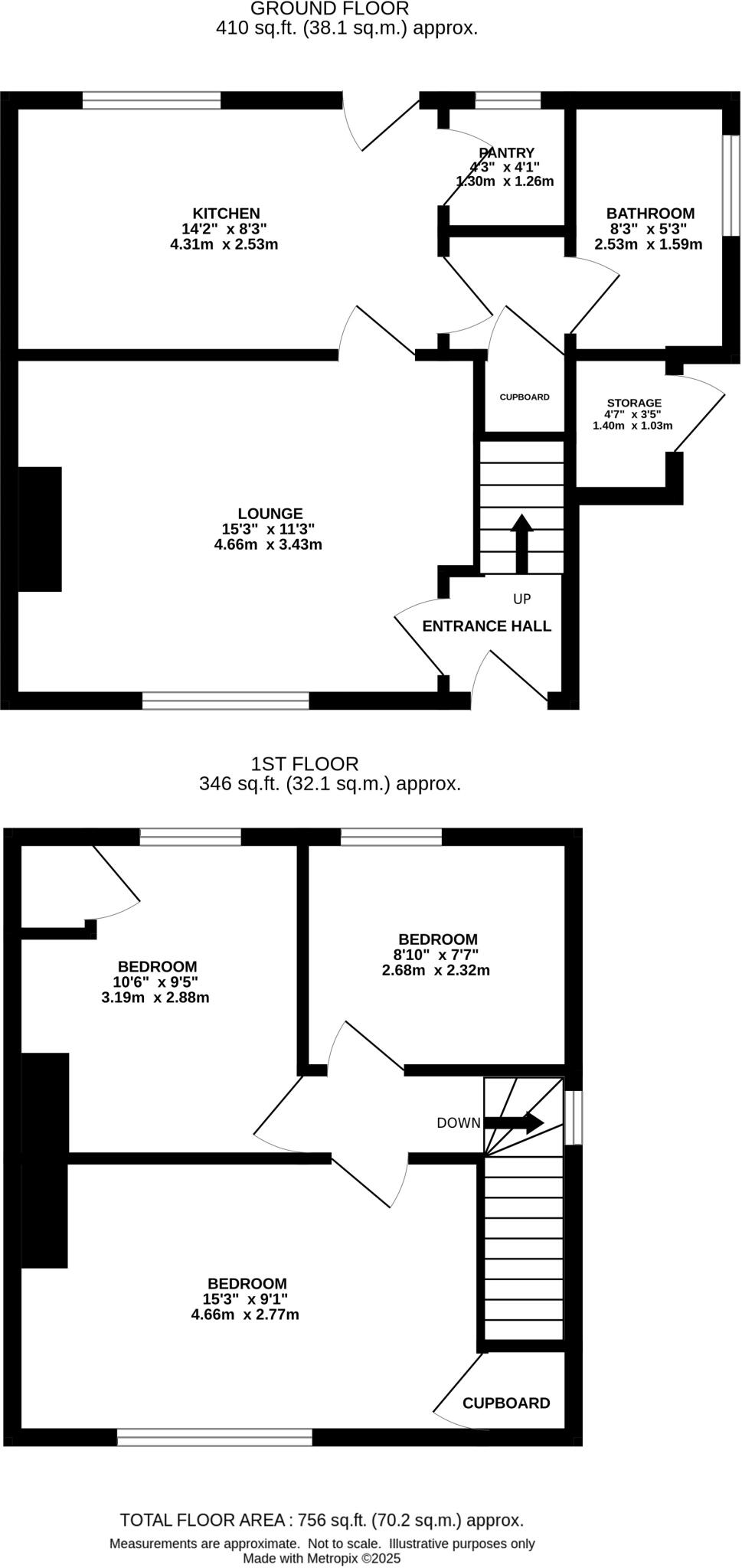
- Three bedrooms over two floors, good layout for refurbishment
- Huge front and rear gardens; scope to extend subject to permission
- Off-street parking and garden shed included
- Needs full modernisation: kitchen, bathroom, decoration and heating
- Electric room heaters and older double glazing; heating upgrade advised
- EPC E and council tax band B; energy improvements likely needed
- Sold by livestream auction 10 Dec 2025; fees apply on exchange
- Freehold tenure; quiet hamlet setting with very low local crime
Set on a substantial plot in the sought-after South Norfolk village of Shotesham, this three-bedroom semi-detached house offers clear scope to add value. The property includes generous front and rear gardens, off-street parking and a detached shed — ideal for extending (subject to planning) or landscaping to create a large family garden.
The accommodation requires full modernisation and redecoration throughout. It currently has older double glazing, electric room heaters and an EPC rating of E; upgrades to heating, insulation and kitchen and bathroom fittings will be needed. Buyers should expect refurbishment work to bring the house up to contemporary standards and to unlock its potential.
The home will be sold by livestream auction on 10 December 2025. There are associated sale fees: an administration fee of £1,200 (inc VAT) and a buyer’s premium of £900 (inc VAT) payable on exchange, plus any disbursements noted in the legal pack. Freehold tenure and low local crime add to the appeal, while good local schools and easy access to the A140/Norwich suit buyers seeking rural living with commuter links.
This property is best suited to a buyer prepared to invest in renovation — a builder, investor or purchaser seeking a project with substantial external space. Viewings are arranged in advance; consult the legal pack for full sale terms and planned auction procedure.
3 bedroom detached bungalow for sale in Vanessa, Priory Lane, Shotesham St. Mary, Norwich, Norfolk, NR15 1YH, NR15 — £225,000 • 3 bed • 1 bath • 1272 ft²
5 bedroom detached house for sale in Woodmans Lodge and Annexe, 38 The Street, Ashwellthorpe, Norfolk NR16 1HD, NR16 — £350,000 • 5 bed • 2 bath • 2388 ft²
3 bedroom detached bungalow for sale in Priory Lane, Shotesham St. Mary, Norwich, NR15 — £300,000 • 3 bed • 2 bath • 1271 ft²
2 bedroom semi-detached house for sale in 2 Beck Cottages, Pulham Road, Starston, Harleston, Norfolk IP20 9NR, IP20 — £100,000 • 2 bed • 1 bath • 819 ft²
4 bedroom detached house for sale in Corner Cottage, Lower Globe Lane, Blofield, Norwich, Norfolk NR13 4RJ, NR13 — £300,000 • 4 bed • 1 bath • 1397 ft²
3 bedroom end of terrace house for sale in St. Felix Rise, Flixton, Bungay, Suffolk, NR35 — £210,000 • 3 bed • 1 bath • 1073 ft²














































