Turn-key furnished rental with immediate income and clear refurbishment upside.
- Immediate rental income: tenants paying £800pcm, fully referenced
- Strong gross yield: circa 10% on £90,000 purchase price
- Freehold Victorian mid-terrace, EPC rating C
- Loft conversion in place; lawful by time, indemnity insurance available
- Small rooms and very small rear yard; compact living space
- Area very deprived with very high crime—consider tenant mix
- Solid-brick walls likely without insulation; possible retrofit costs
- On-street parking only (permit required); steep loft stairs unsuitable for children
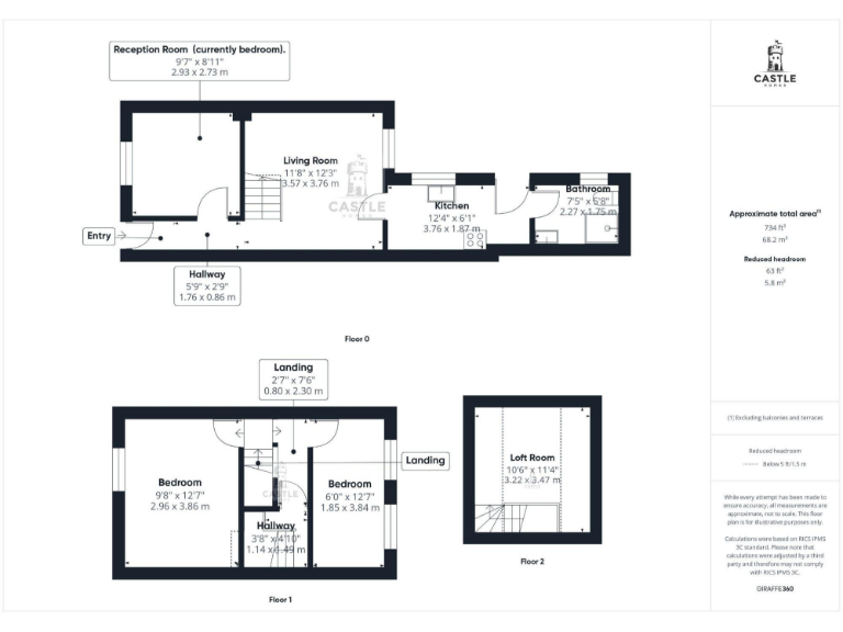
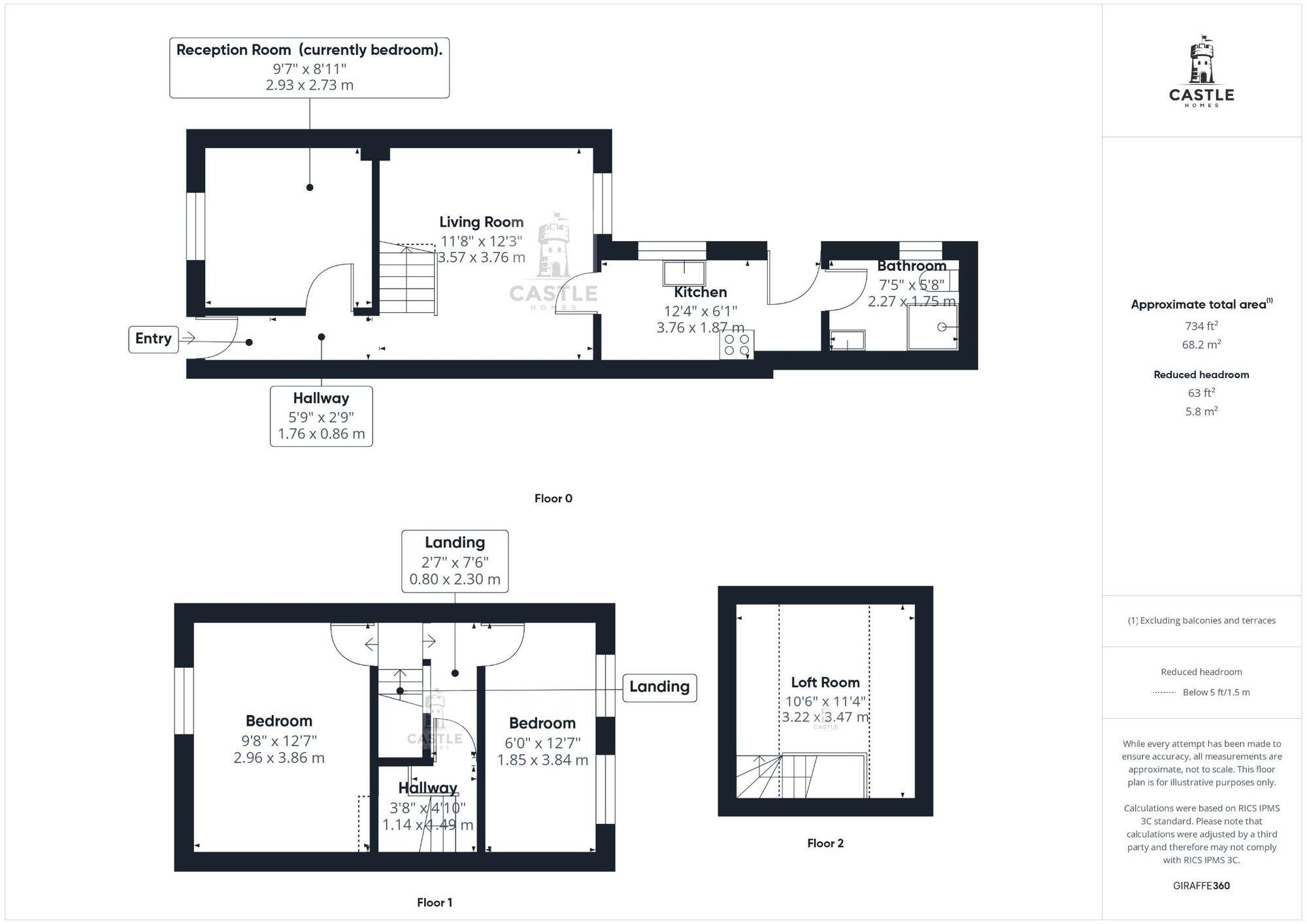
This mid-terrace Victorian house in TS1 is presented as a turn-key buy-to-let with immediate income. Fully furnished and let to fully referenced tenants at £800pcm, the property produces a strong yield for investors and benefits from recent redecoration and a modern kitchen and shower room. The loft has been in use for over a decade and a Building Regulations Indemnity Insurance can be provided on request.
Practicalities are straightforward: freehold tenure, mains gas boiler and double glazing, EPC C and excellent mobile and fast broadband—useful for students or commuter tenants. On-street resident parking is available (permit required) and the small, low-maintenance rear yard provides external access via a rear alley.
Buyers should note important limitations. The area is classified as very deprived with very high crime levels, and the plot and rooms are small. The property was built with solid brick walls likely without insulation, so heating costs and retrofit work should be considered. The loft conversion was completed around 12 years ago without formal building-regs sign-off but is considered lawful by time; indemnity insurance can be supplied.
This house suits investors seeking immediate rental income or buyers wanting a compact city home near Teesside University, James Cook Hospital and A19 links. It’s offered with sitting tenants and is positioned for hands-off rental returns or further value from sensible refurbishment.
2 bedroom end of terrace house for sale in Kildare Street, Middlesbrough, North Yorkshire, TS1 — £75,000 • 2 bed • 1 bath • 732 ft²
3 bedroom terraced house for sale in Egerton Street, Middlesbrough, TS1 3LS, TS1 — £85,000 • 3 bed • 1 bath
2 bedroom terraced house for sale in Laycock Street, Middlesbrough, TS1 — £74,950 • 2 bed • 1 bath • 894 ft²
3 bedroom terraced house for sale in Nesham Road, Middlesbrough, TS1 — £90,000 • 3 bed • 1 bath • 1066 ft²
2 bedroom terraced house for sale in Harford Street, Middlesbrough, TS1 — £69,950 • 2 bed • 1 bath • 634 ft²
2 bedroom terraced house for sale in Sadberge Street, North Ormesby, TS3 — £67,000 • 2 bed • 1 bath • 690 ft²






































































