**Standout Features:**
- Modernized two-bedroom terraced house in a quiet cul-de-sac
- Fabulous re-fitted kitchen with breakfast bar and integrated appliances
- Cozy family room with access to a private, secluded rear garden
- Well-appointed modern family bathroom
- Off-street parking, adding convenience for families or commuters
- Close proximity to town center, train station, and well-regarded schools
- EPC Rating: C, Council Tax Band: D
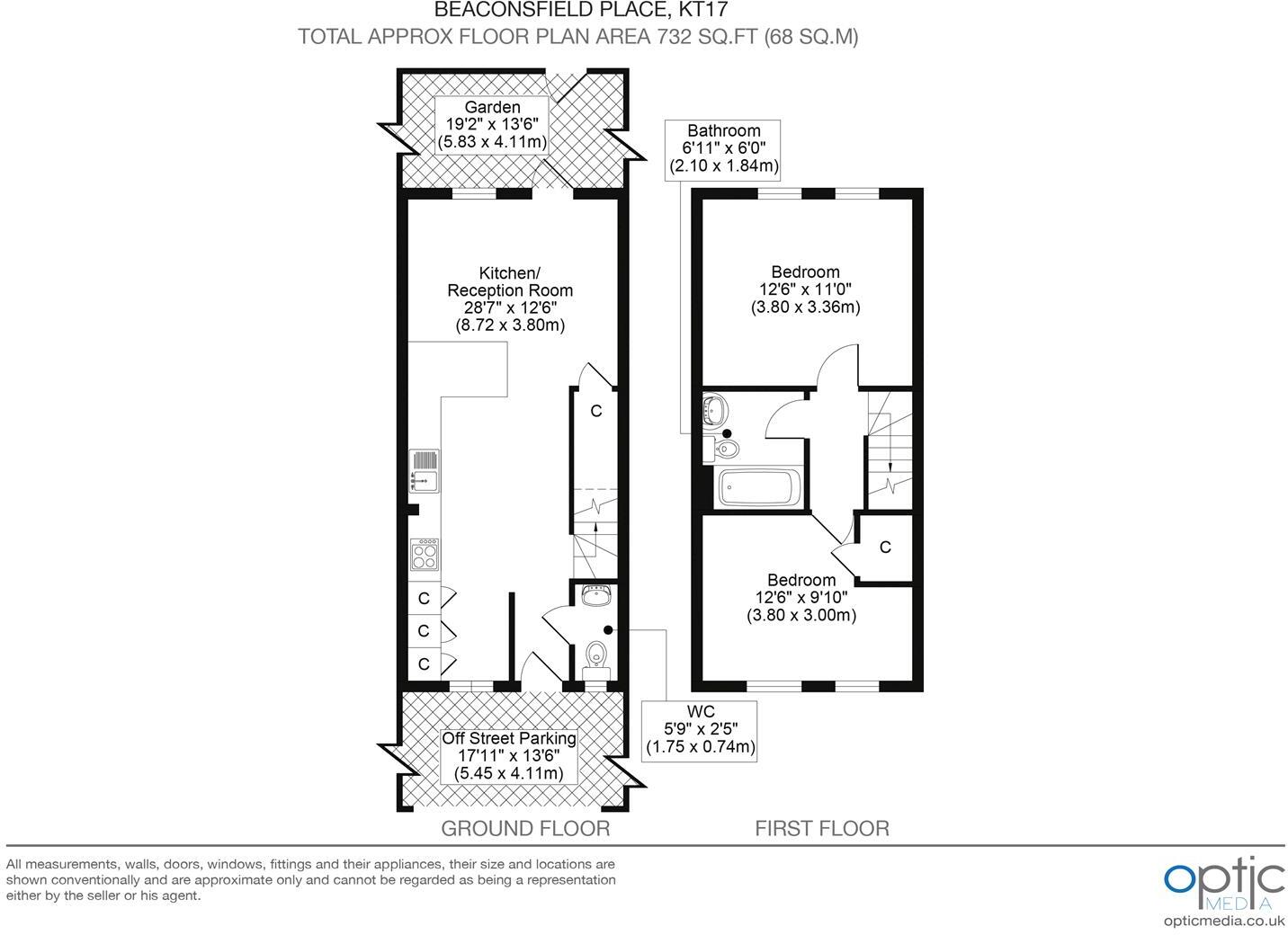
This beautifully modernized two-bedroom terraced house is your opportunity for stylish living in a peaceful cul-de-sac. Step inside to find an inviting lobby that leads into a tailormade open-plan living space, featuring a fabulous re-fitted kitchen complete with a breakfast bar and contemporary finishes. The cozy family room extends to a private garden, perfect for intimate gatherings or leisurely afternoons.
Upstairs, two generously sized double bedrooms offer bright and airy retreats, complemented by a modern family bathroom equipped for today’s lifestyle. The property’s off-street driveway provides essential parking space, while the convenient location ensures easy access to the town center, train station, and excellent local schools.
Though the property is in excellent condition, potential buyers should note the small rear garden ideal for low-maintenance enjoyment. With its contemporary features and prime location, this home is perfect for families and first-time buyers alike—don’t miss out on this exceptional opportunity to claim your slice of comfort!







































































