TQ9 7TR - 2 bedroom cottage for sale in Harbertonford, Totnes, TQ9

View on Property Piper

2 bedroom cottage for sale in Harbertonford, Totnes, TQ9

Summary - Rockford Cottage, Harbertonford TQ9 7TR

2 bed 1 bath Cottage

**Standout Features:**
- Characterful two-bedroom cottage in Harbertonford
- Open fireplace in the living room; curved staircase to main bedroom
- Bright kitchen/diner with conservatory leading to patio garden
- Vaulted ceiling and exposed beams in the main bedroom
- Chain-free, freehold property with mains gas central heating
- Excellent mobile signal and low crime area

**Concise Summary:**
Discover Rockford Cottage, a charming two-bedroom home tucked away in the picturesque village of Harbertonford, just three miles from bustling Totnes. This delightful residence offers an inviting living room with a large open fireplace, a bright kitchen/diner with a conservatory, and a tranquil patio garden perfect for al fresco dining. The main bedroom features a breathtaking vaulted ceiling with exposed beams, enhancing the cottage’s character.

With an affordable council tax band and exceptional potential as a first home, holiday retreat, or quiet downsizing option, this property won't last long! While the cottage boasts unique features and a quaint atmosphere, it may benefit from some modern updates. Embrace the cozy countryside lifestyle and enjoy easy access to local shops, schools, and amenities. Don’t miss your chance to own this gem; schedule your viewing today!

Property Details

Image Descriptions

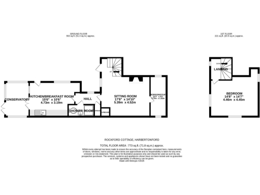
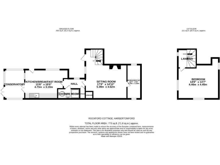
Floorplan Description

Rooms

Textual Property Features

Detected Visual Features

EPC Details

Nearby Schools

Nearest Bars And Restaurants

,,,,}

Nearest General Shops

,,}

Nearest Grocery shops

,,}

Nearest Supermarkets

,,}

Nearest Religious buildings

,,}

Nearest Medical buildings

,,,}

Nearest Leisure Facilities

,,,,}

Nearest Tourist attractions

,,}

Nearest Train stations

,,,,}

Nearest Bus stations and stops

,,,,}

Nearest Hotels

,,}

Tags

Local Market Stats

AirBnB Data

Similar Properties

Meta

High Res Images

Compatible Images

Low res Images

Thumbnails

Raw Images

High Res Floorplan Images

Compatible Floorplan Images

Low res Floorplan Images

FloorplanImages Thumbnail

Raw Floorplan Images