Turnkey three-bed home with loft conversion and off-street parking.
Newly renovated throughout — turnkey condition
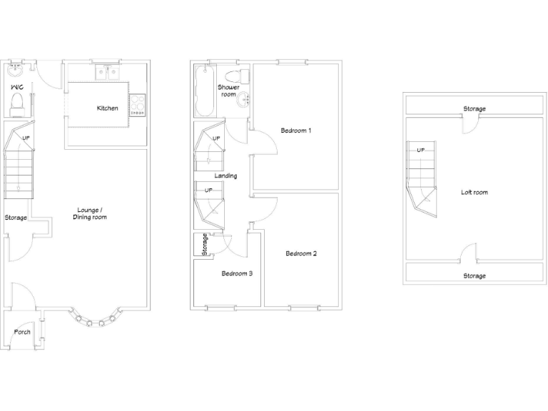
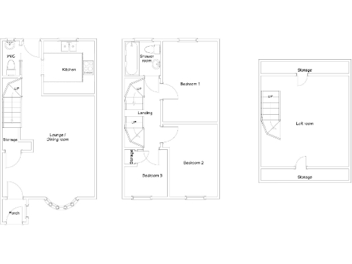
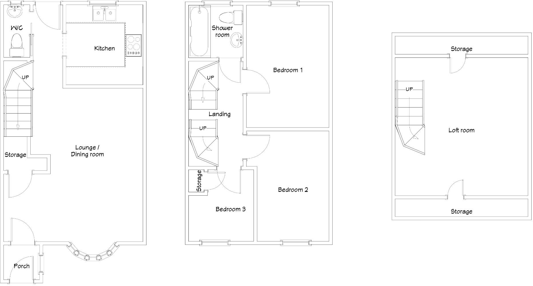
This newly renovated three-bedroom semi-detached home in Penmaen Corner is presented ready to move into. Bright, modern finishes and laminate flooring run throughout, and the loft has been thoughtfully converted with fitted storage and Velux windows, adding valuable extra space.
Ground floor living is arranged around a generous open-plan lounge/diner with a bowed front window, oak staircase, cloakroom and a fitted kitchen with integrated appliances and laundry space. Upstairs you’ll find three bedrooms and a contemporary shower room; the loft provides flexible additional accommodation or storage.
Outside there is off-street parking, a level rear garden with decking and lawn, mature front borders and a handy garden house. Practical benefits include freehold tenure, fast broadband, excellent mobile signal and no flood risk.
Buyers should note the plot is small and the property sits in an area ranked as very deprived, which may influence local services and long-term resale values. The house is average-sized at about 891 sq ft, so larger families should check bedroom and storage needs in person.
3 bedroom semi-detached house for sale in Sannan Street, ABERBARGOED, CF819BJ, CF81 — £210,000 • 3 bed • 1 bath • 589 ft²
3 bedroom semi-detached house for sale in Caerbryn, PENTWYNMAWR, NEWBRIDGE, NP11 — £260,000 • 3 bed • 1 bath • 653 ft²
3 bedroom semi-detached house for sale in Heol Barri, Caerphilly, CF83 — £279,000 • 3 bed • 1 bath • 990 ft²
3 bedroom terraced house for sale in Fflorens Road, Newbridge, NP11 — £219,000 • 3 bed • 2 bath • 905 ft²
3 bedroom terraced house for sale in Markham Crescent, Oakdale, NP12 — £220,000 • 3 bed • 2 bath • 719 ft²
3 bedroom semi-detached house for sale in Glan Ffrwd, Caerphilly, CF83 — £220,000 • 3 bed • 2 bath • 938 ft²


















































































































