AL3 8RD - 2 bed parkfield two bed semi in Park Field, AL3 8RD

View on Property Piper

2 bedroom semi-detached house for sale in Parkfield, Markyate, St. Albans, AL3

Summary - 36 PARK FIELD MARKYATE ST ALBANS AL3 8RD

2 bed 1 bath Semi-Detached

Well-presented two-bedroom semi with a large garden, ideal for first-time buyers.
Large rear garden with two patio seating areas
A bright two-bedroom semi in Parkfield, Markyate, ideal for first-time buyers seeking outdoor space and easy access to village amenities. The large dual-aspect living/dining room with French doors opens directly onto a generous rear garden, offering room for entertaining, children’s play or a vegetable patch.

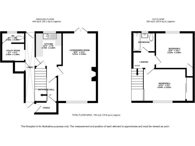
The property offers a modern fitted kitchen, separate utility room with guest WC, and a practical layout across two floors. Upstairs are two good-sized bedrooms and a contemporary three-piece bathroom. A pebble driveway provides off-street parking and the home is freehold.

Practical considerations: the house was built mid-20th century and cavity walls are assumed to be without added insulation, so buyers should factor possible energy-efficiency improvements and heating costs. At around 794 sq ft and with a single bathroom, the home suits first-time buyers or couples rather than larger families. Broadband speeds are average, but mobile signal is excellent and transport links to the M1/M25 and nearby rail hubs are strong.

With a decent plot and a large garden, the property has straightforward potential to personalise and improve value through insulation upgrades and cosmetic updating.

Property Details

Image Descriptions

Floorplan Description

Rooms

Textual Property Features

Target Audience

AI Tags

Detected Visual Features

EPC Details

Nearby Schools

Nearest Bars And Restaurants

,,,,}

Nearest General Shops

,,}

Nearest Grocery shops

,,}

Nearest Supermarkets

,,}

Nearest Religious buildings

,,}

Nearest Medical buildings

,,,}

Nearest Airports

}

Nearest Leisure Facilities

,,,,}

Nearest Tourist attractions

,,}

Nearest Train stations

,,,,}

Nearest Bus stations and stops

,,,,}

Nearest Hotels

,,}

Tags

Local Market Stats

Similar Properties

Meta

High Res Images

Compatible Images

Low res Images

Thumbnails

Raw Images

High Res Floorplan Images

Compatible Floorplan Images

Low res Floorplan Images

FloorplanImages Thumbnail

Raw Floorplan Images