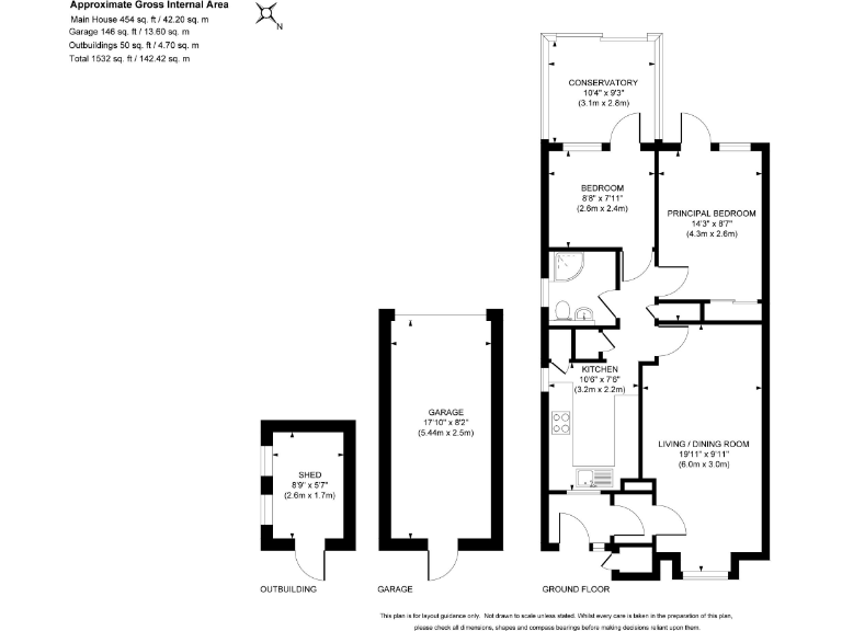
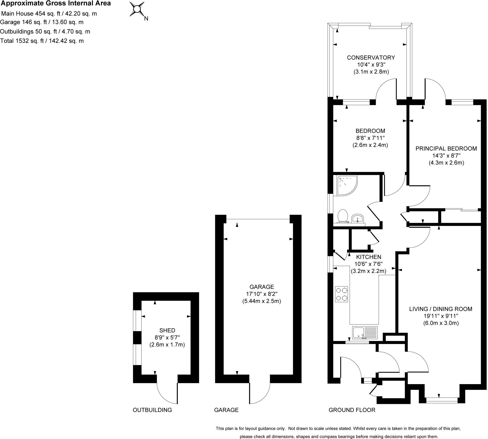
- Two double bedrooms with built-in wardrobe to main bedroom
- Bright lounge and rear conservatory overlooking the garden
- Fitted modern kitchen with integrated appliances
- Single shower room; only one bathroom in the property
- Garage with power and electric up-and-over door accessed via garden
- Small-to-average plot; garden larger than some neighbouring bungalows
- Freehold and chain free for quicker completion
- Potential to extend subject to usual planning consents
This neat two-bedroom bungalow on Greythorne Road offers single-floor living in a quiet cul‑de‑sac, ideal for downsizers or buyers seeking low-maintenance accommodation close to Woking town centre. The living room flows to a bright conservatory, adding flexible reception space that overlooks a sunny, mainly lawned garden. The fitted kitchen and garage with power provide practical everyday convenience.
The bungalow is presented well but sits on a small-to-average plot and its internal footprint is modest; it will suit those seeking compact, manageable space rather than large-family accommodation. There is a single bathroom and built-in storage in the main bedroom; modest modernisation would update some finishes and personalise the property.
Practical positives include freehold tenure, no onward chain, double glazing, warm air heating, good mobile signal and fast broadband — useful for remote working. There is potential to extend subject to the usual planning consents if a buyer needs extra living space or to reconfigure the layout, and the garage is accessible from the garden with an electrically operated door.
Location is a strong feature: easy walking distance to local shops and quick access to Woking’s broader amenities, theatres and leisure facilities. Parks, canal and nature reserves nearby offer outdoor options. The property is suited to purchasers prioritising convenience, low-step living and future enlargement potential rather than those seeking a large plot or significant internal space.















































