Charming village home near Marlow with garden and parking potential.
Grade II listed cottage with strong original character
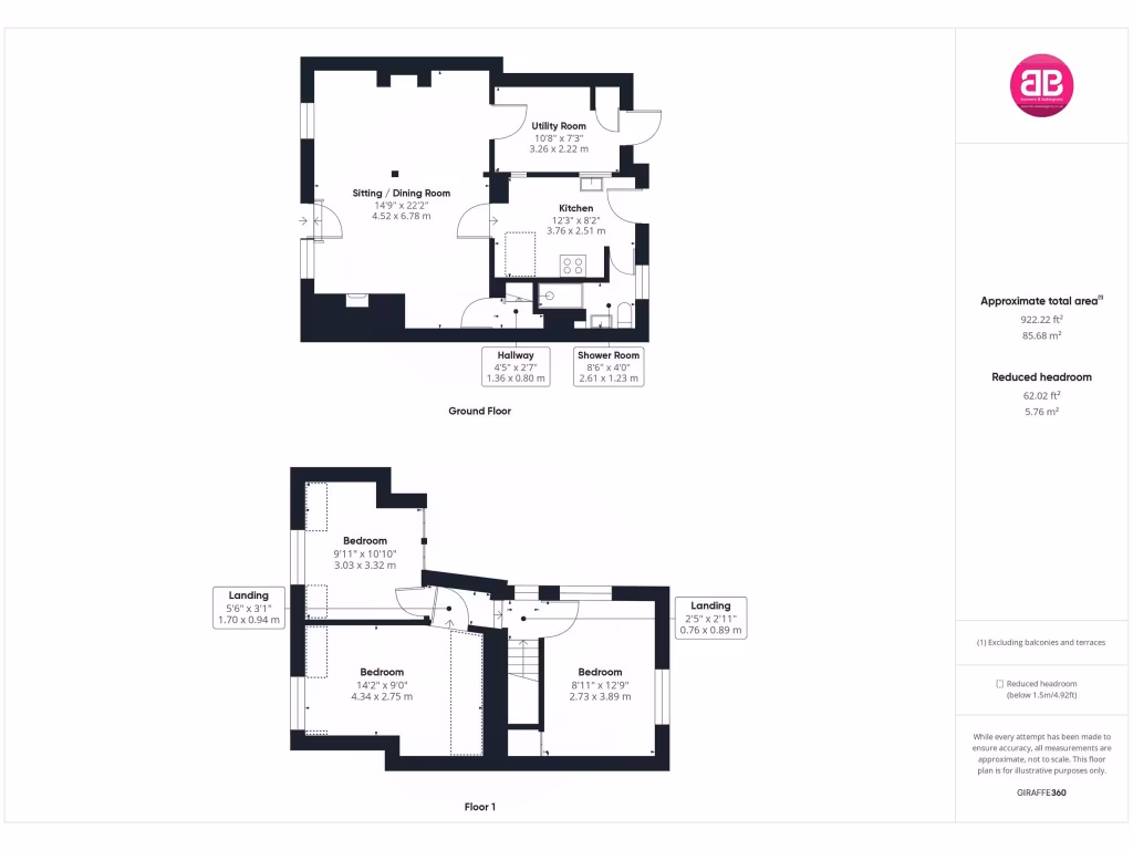
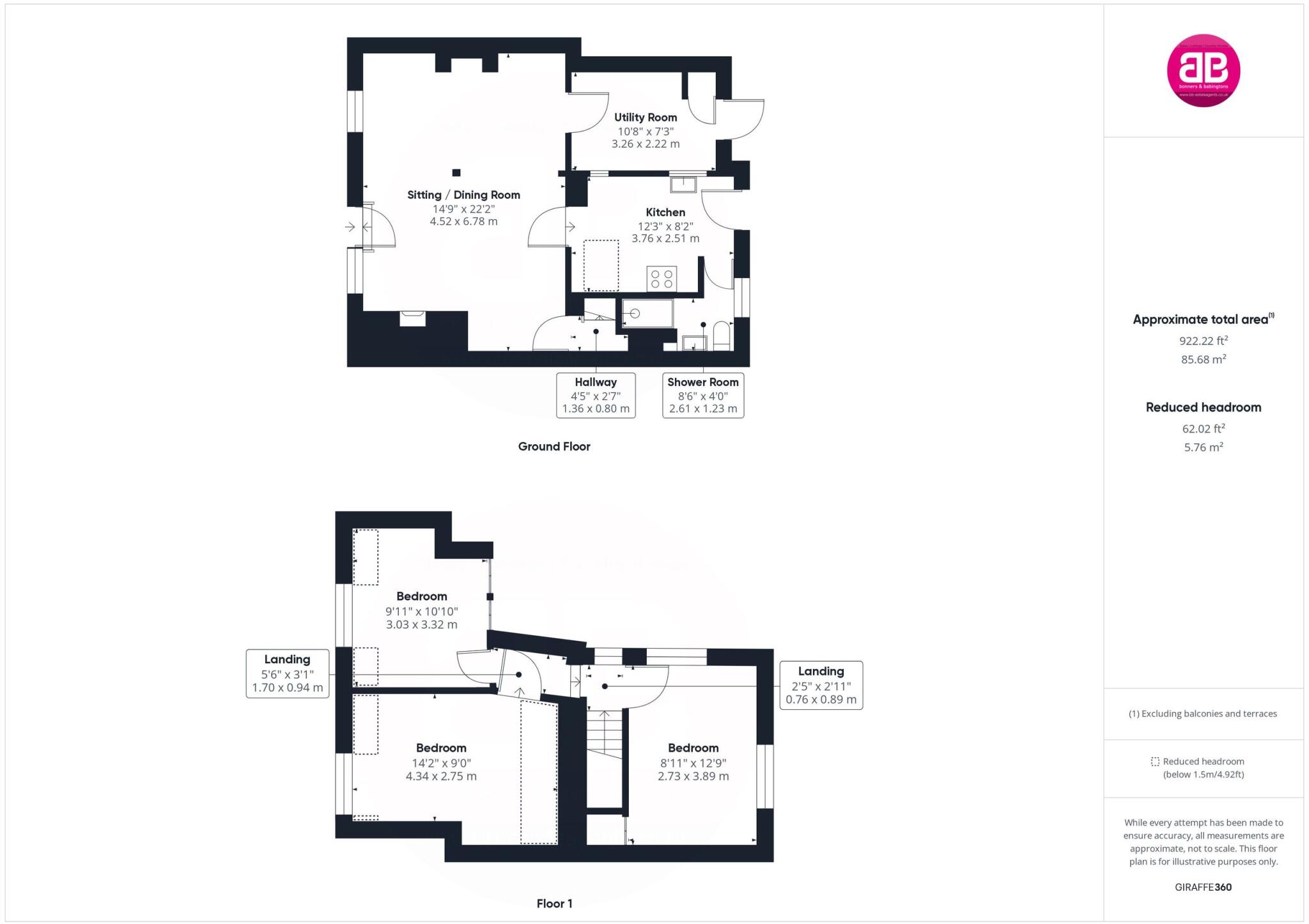
A Grade II listed three-bed cottage in Bisham, offering genuine period character with exposed beams, latched doors and a feature fireplace. The home is compact but charming, ideal for buyers seeking village living within easy reach of Marlow's shops, schools and recreational facilities.
The accommodation includes a living room, refitted kitchen, ground-floor shower room, and three first-floor bedrooms with quirky, uneven floors and low ceilings typical of older cottages. Outside, a lean-to utility leads to a private, mostly lawned garden and a gated area at the rear that could be converted for off-street parking.
Practical considerations: the property requires refurbishment, has solid brick walls likely without insulation, and uses a coal-fuelled boiler with radiators. Its Grade II listing will restrict alterations and may complicate works or extensions. Council tax is above average.
For buyers who value character over modern space, this freehold, chain-free cottage presents a chance to create a distinctive village home close to excellent schools and fast links to Marlow and Maidenhead. Renovation scope makes it suitable for someone prepared to manage restoration within listed-building constraints.
2 bedroom terraced house for sale in Bisham Village, Marlow Road, Bisham, Marlow, SL7 — £525,000 • 2 bed • 1 bath • 758 ft²
3 bedroom end of terrace house for sale in Bisham Village, Marlow Road, Bisham, Marlow, SL7 — £650,000 • 3 bed • 1 bath • 991 ft²
2 bedroom terraced house for sale in Under The Wood, Bisham, SL7 — £500,000 • 2 bed • 2 bath • 1023 ft²
2 bedroom terraced house for sale in 2 The Green, Bisham, Marlow SL7 1RY, SL7 — £380,000 • 2 bed • 1 bath • 649 ft²
5 bedroom detached house for sale in Church Road, Marlow, SL7 — £1,650,000 • 5 bed • 3 bath • 2621 ft²
2 bedroom house for sale in West Street, Marlow, SL7 — £645,000 • 2 bed • 1 bath • 777 ft²










































































