**Key Features:**
- Semi-detached brick home built in 1973
- 2 well-proportioned bedrooms and 1 bathroom
- Spacious driveway and garage, ample parking
- Low crime area with fast broadband and excellent mobile signal
- Generous garden with lawn and patio area
- Leasehold property with 49 years remaining on the lease; potential mortgage challenges
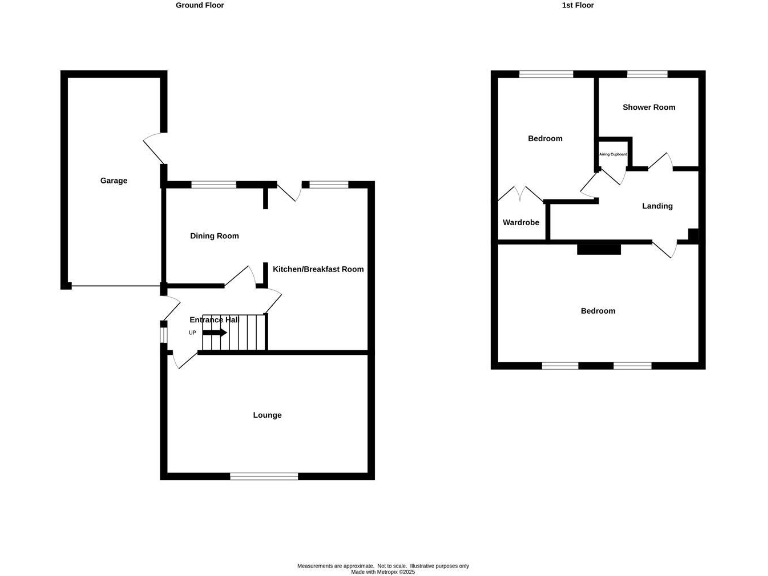
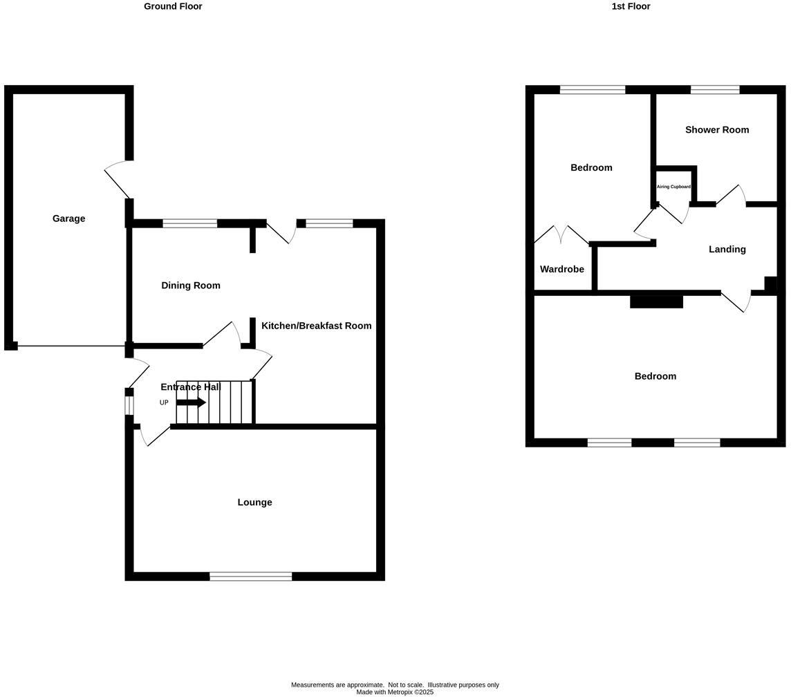
Located on Chatsworth Road in the desirable suburb of Halesowen, this charming semi-detached house presents an inviting opportunity for first-time buyers or small families seeking a cozy retreat. With a classic brick exterior and a spacious driveway that accommodates multiple vehicles, this property combines practicality with suburban charm. Inside, the layout features a compact entryway leading to a double aspect lounge and a kitchen-diner conveniently connected by an archway—the perfect scene for everyday living and family gatherings.
Upstairs, you'll discover two comfortable bedrooms and a well-appointed bathroom, providing ample space for all residents. The well-maintained rear garden offers a serene outdoor space for relaxation and recreation amid the lush surroundings. While the leasehold status may pose challenges with mortgage lending due to the limited duration (49 years remaining), savvy investors might see potential for future renovations or a long-term hold in a community-oriented, affluent neighborhood with various educational institutions nearby. Embrace the chance to make this lovely house your home and enjoy the comforts of suburban living. Act quickly; opportunities like this won’t linger long!
3 bedroom semi-detached house for sale in Chatsworth Road, Halesowen, B62 — £275,000 • 3 bed • 1 bath • 678 ft²
3 bedroom semi-detached house for sale in Brier Mill Road, Halesowen, B63 — £290,000 • 3 bed • 1 bath • 990 ft²
2 bedroom semi-detached house for sale in Chatsworth Road, Halesowen, West Midlands, B62 — £265,000 • 2 bed • 1 bath • 732 ft²
5 bedroom semi-detached house for sale in Grange Road, Halesowen, B63 — £340,000 • 5 bed • 2 bath • 797 ft²
3 bedroom semi-detached house for sale in Haden Hill Road, Halesowen, B63 — £350,000 • 3 bed • 1 bath • 937 ft²
3 bedroom semi-detached house for sale in Meadowbrook Road, Halesowen, B63 — £360,000 • 3 bed • 2 bath • 1180 ft²


























































































