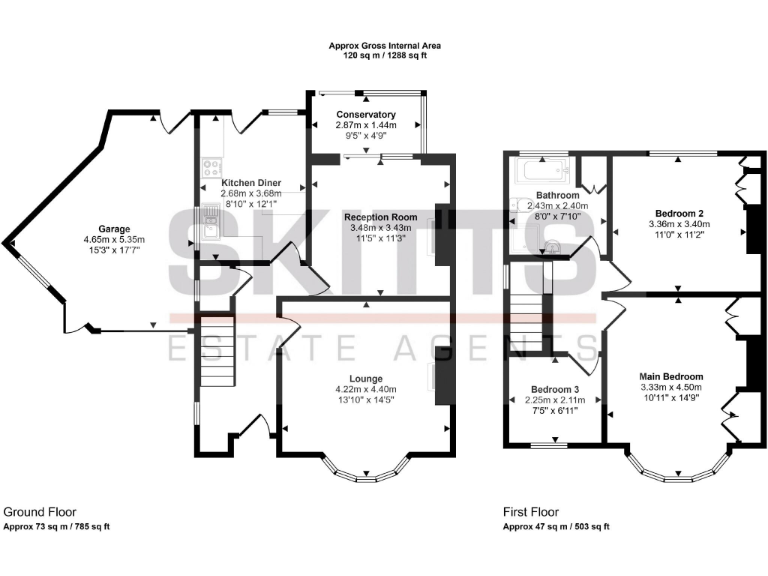
Three-bedroom family home with garage, driveway and low-maintenance rear garden.
Chain free three-bedroom semi-detached on a generous plot
A roomy three-bedroom semi on a generous plot, this family home offers immediate occupation with no upward chain. Ground floor layout includes two reception rooms, a conservatory and a fitted kitchen with breakfast bar — useful for everyday family living and casual dining. The front-facing lounge and principal bedroom benefit from bay windows that fill rooms with natural light.
Practical outside space is a strong feature: a large front garden, substantial driveway and a garage with side access, plus a fully paved rear garden for low-maintenance outdoor use. Central heating and double glazing are installed; the property is freehold and set back from the road on a residential street.
Buyers should be aware of material negatives: the house sits in an area classed as deprived with above-average local crime statistics, and the building’s solid-brick walls are likely uninsulated, which contributes to an Energy Rating of D. Council Tax Band C keeps running costs moderate but there may be scope for heating and insulation improvements to reduce bills.
This home suits a growing family seeking space and low garden upkeep, or buyers wanting a period property with scope to update. Its size, garage and off-street parking create practical appeal; planned refurbishment could improve comfort and energy efficiency while adding value.
3 bedroom semi-detached house for sale in High Arcal Drive, Sedgley, Dudley, DY3 — £260,000 • 3 bed • 1 bath • 632 ft²
3 bedroom semi-detached house for sale in Falcon Way, Russells Hall, Dudley, DY1 2JP, DY1 — £210,000 • 3 bed • 1 bath • 703 ft²
3 bedroom semi-detached house for sale in Stonepine Place, UPPER GORNAL, DY3 1TR, DY3 — £250,000 • 3 bed • 2 bath • 813 ft²
3 bedroom semi-detached house for sale in Andrews Close, Brierley Hill, DY5 2XB, DY5 — £249,950 • 3 bed • 1 bath • 721 ft²
3 bedroom semi-detached house for sale in Tiled House Lane, Brierley Hill, DY5 4LT, DY5 — £235,000 • 3 bed • 1 bath • 1012 ft²
3 bedroom semi-detached house for sale in The Close, Dudley, DY3 — £220,000 • 3 bed • 1 bath • 1013 ft²






































































































