Character period building with modern kitchen and far-reaching North London views.
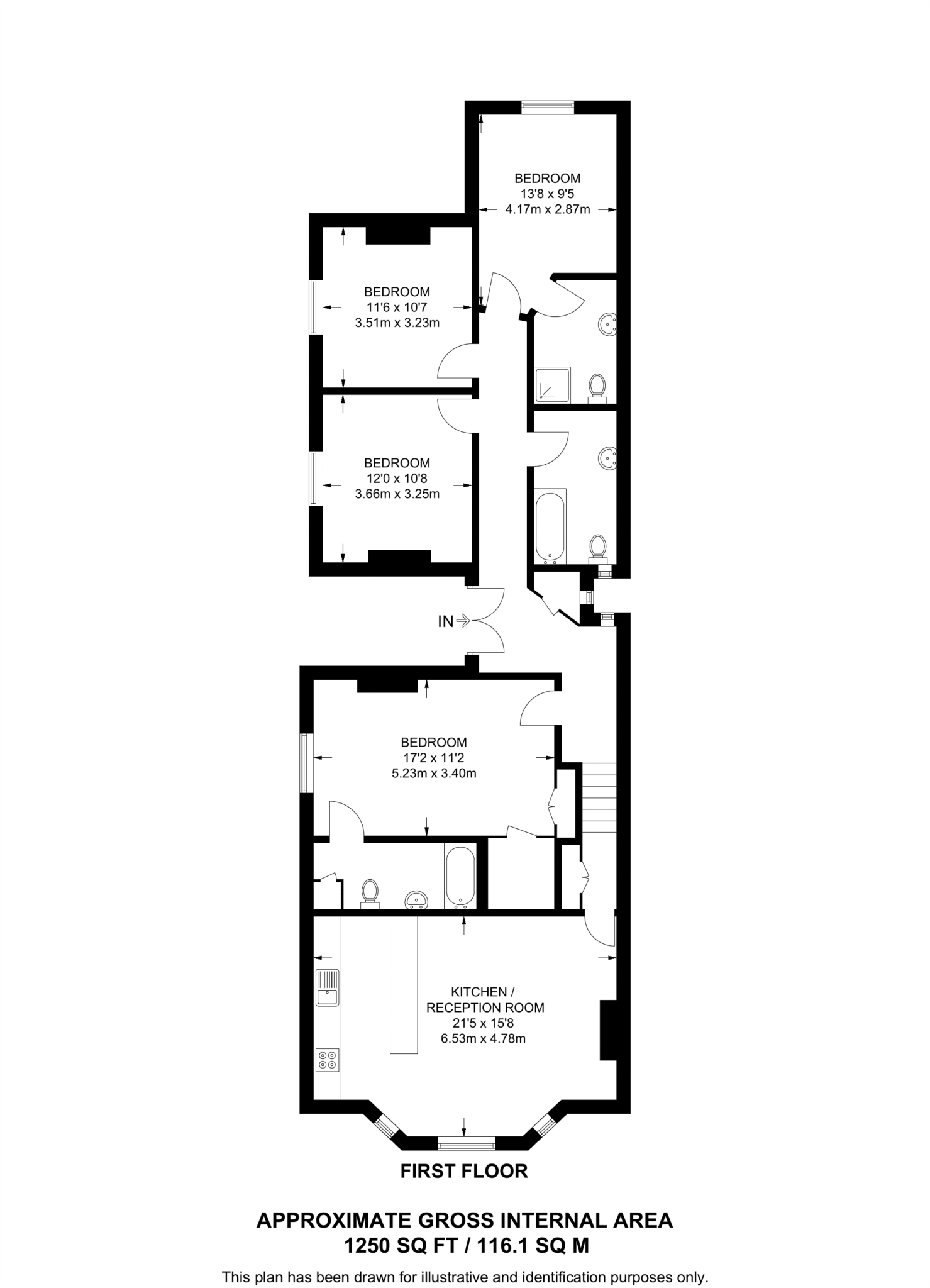
First-floor four-bedroom flat with two en-suite bedrooms
Set on the first floor of a handsome period mansion block in West Hampstead, this roomy four-bedroom flat delivers flexible family living and strong rental appeal. The home offers an open-plan reception with a contemporary kitchen and broad North London views, plus two en-suite bedrooms and a further family bathroom — practical for families or sharers.
At around 1,250 sq ft the accommodation is well-proportioned rather than grand; original Victorian character remains in places, such as cornicing and a fireplace, while the kitchen and bathrooms present a more contemporary finish. Heating is by mains gas boiler and radiators. The location is a key draw: Mill Lane shops, cafés and transport links are all within easy reach, and several well-rated primary and secondary schools are nearby.
Buyers should note this is a leasehold property from the early 20th century with solid-brick walls likely lacking modern cavity insulation, so upgrading for improved thermal performance may be desirable. Overall the flat suits a family seeking space and character in a very affluent, well-connected area, or an investor targeting strong demand for high-quality rental accommodation.
4 bedroom flat for sale in Palace Court, NW3 — £1,350,000 • 4 bed • 2 bath • 2730 ft²
2 bedroom apartment for sale in Mill Lane, West Hampstead, NW6 — £600,000 • 2 bed • 2 bath • 788 ft²
2 bedroom flat for sale in Frognal, Hampstead, London, NW3 — £1,100,000 • 2 bed • 2 bath • 895 ft²
2 bedroom flat for sale in Hemstal Road, London, NW6 — £575,000 • 2 bed • 2 bath • 646 ft²
3 bedroom flat for sale in Kings Gardens, West Hampstead, London, NW6 — £950,000 • 3 bed • 2 bath • 1120 ft²
2 bedroom apartment for sale in West End Lane, London, NW6 — £595,000 • 2 bed • 1 bath • 593 ft²






















































































