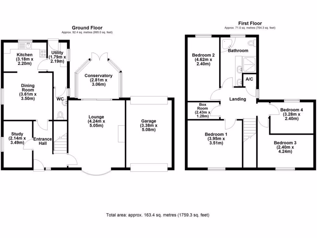
**Standout Features:**
- Spacious detached family home
- Four bedrooms & ample living space
- Conservatory and two reception rooms
- Quiet village location with no onward chain
- Large enclosed rear garden with patio
- Garage with front and rear access
- Well-sized plot suitable for families
- Good local primary and secondary schools nearby
**Summary:**
This charming detached family house in the tranquil village of East Barkwith offers spacious living across approximately 1,759 sq. ft., perfect for families seeking comfort and a rural lifestyle. Featuring four generously sized bedrooms, two inviting reception areas, a study, and a bright conservatory that seamlessly connects indoor and outdoor spaces, this home is designed for both relaxation and entertaining. The traditional kitchen, equipped with a gas hob and dual built-in oven, provides the ideal setting for family meals, while the utility room and WC add to the home's practicality.
Set on a large plot, the property boasts a well-maintained garden with a patio, making it an excellent space for children to play or for hosting summer barbecues. Plus, the convenience of a garage adds valuable storage or parking facilities.
While the property offers great potential as-is, it may also benefit from some updates to suit individual tastes. With average broadband speeds and mobile coverage, it strikes a balance between rural serenity and modern connectivity. Ideal for families and first-time buyers alike, this home is chain-free and ready for you to personalize. Act fast—properties like this, offering both space and charm in a peaceful location, don't stay on the market long!
3 bedroom semi-detached house for sale in 5 Wold View, Willingham Road, East Barkwith, LN8 — £179,950 • 3 bed • 1 bath
4 bedroom detached house for sale in Willingham Road, East Barkwith, LN8 — £400,000 • 4 bed • 3 bath • 1701 ft²
4 bedroom detached bungalow for sale in 5.13 Acres - Torrington Lane, East Barkwith, LN8 — £720,000 • 4 bed • 2 bath • 1960 ft²
4 bedroom detached house for sale in Meadow Drive, Binbrook, LN8 — £285,000 • 4 bed • 2 bath • 1398 ft²
4 bedroom detached house for sale in Holton-Cum-Beckering, Market Rasen, LN8 — £475,000 • 4 bed • 3 bath • 1630 ft²
3 bedroom detached bungalow for sale in Louth Road, Wragby, Market Rasen, LN8 — £325,000 • 3 bed • 1 bath • 1426 ft²


























































































