WA6 8DA - 5 bedroom detached house for sale in Top Road, Kingsley, Fr…

View on Property Piper

5 bedroom detached house for sale in Top Road, Kingsley, Frodsham, WA6

Summary - 35 TOP ROAD KINGSLEY FRODSHAM WA6 8DA

5 bed 2 bath Detached

**Standout Features:**
- Individual detached family home in a sought-after rural village
- Approximately 0.25 acres of beautifully landscaped gardens
- Spacious, flexible accommodation with up to five bedrooms and two bathrooms
- Double garage and separate workshop; ample parking facilities
- Chain-free sale, ready for immediate occupancy
- Established local community with essential amenities nearby

**Summary:**
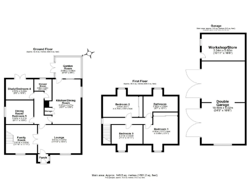
Nestled in a picturesque rural Cheshire village, this impressive detached family home offers a generous 0.25 acres of landscaped gardens, ideal for families looking to embrace outdoor living. With substantial, flexible accommodation spread across two floors, you’ll find four adaptable living rooms on the ground floor, along with a sizeable kitchen/breakfast room and a sunny conservatory. The upper floor hosts three additional double bedrooms and a family bathroom, providing ample space for all.

Outside, enjoy the expansive gardens that boast both front and rear lawns, alongside well-maintained flower beds, perfect for gardening enthusiasts. The property also features a long driveway offering extensive parking and a range of outbuildings including double garages and a workshop. Located within a thriving community, you'll benefit from access to local schools, shops, and the stunning Delamere Forest nearby. With such a prime setting and strong potential for future renovations, don’t miss this rare opportunity!

Property Details

Brochure Descriptions

Image Descriptions

Floorplan Description

Rooms

Textual Property Features

Detected Visual Features

EPC Details

Nearby Schools

Nearest Bars And Restaurants

,,,,}

Nearest General Shops

,,}

Nearest Grocery shops

,,}

Nearest Supermarkets

,,}

Nearest Religious buildings

,,}

Nearest Medical buildings

,,,}

Nearest Airports

,}

Nearest Leisure Facilities

,,,,}

Nearest Tourist attractions

,,}

Nearest Train stations

,,,,}

Nearest Bus stations and stops

,,,,}

Nearest Hotels

,,}

Tags

Local Market Stats

Similar Properties

Meta

High Res Images

Compatible Images

Low res Images

Thumbnails

Raw Images

High Res Floorplan Images

Compatible Floorplan Images

Low res Floorplan Images

FloorplanImages Thumbnail

Raw Floorplan Images