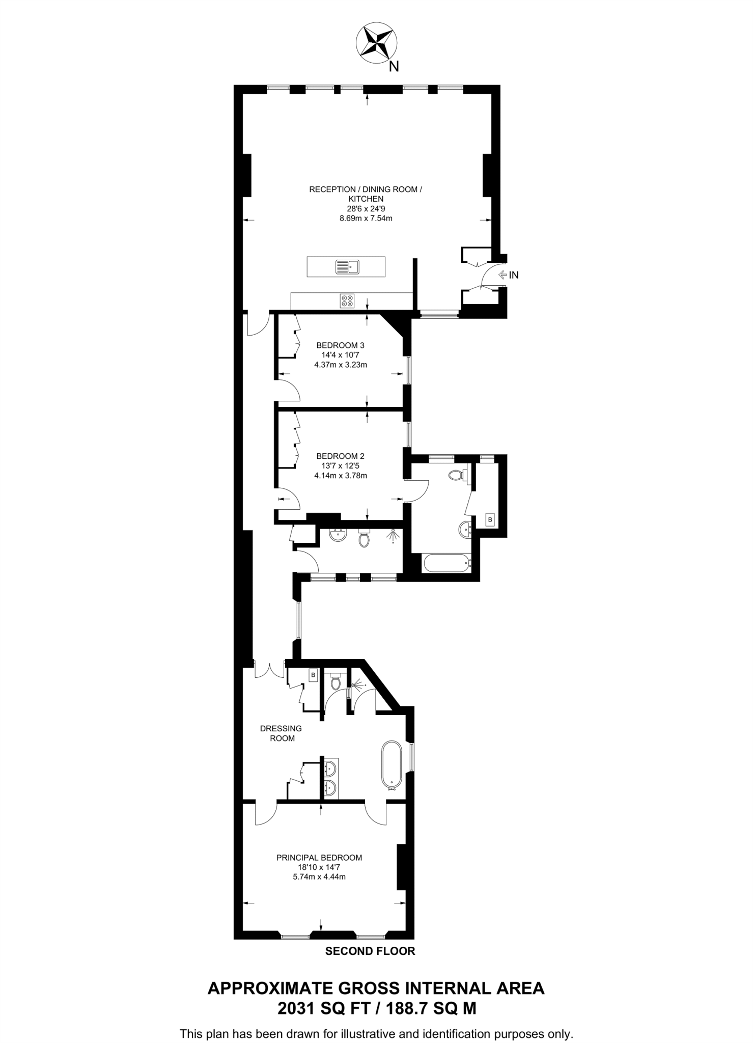
Grand, newly renovated three-bedroom apartment in leafy central London location.
- Extremely large apartment: approx. 2,031 sq ft
- High ceilings, wooden flooring, bright open-plan reception
- Newly renovated kitchen with breakfast bar
- Three double bedrooms; two with en suites
- Overlooks private tennis courts; leafy outlook
- Leasehold with 173-year term remaining
- Above-average service charge £6,260pa; ground rent £500pa
- Solid brick building; likely limited wall insulation
This exceptionally large 3-bedroom apartment sits on the second floor of a handsome red‑brick mansion in Holland Park. At about 2,031 sq ft it offers truly generous living space: a bright, high‑ceiling reception with wooden floors and a newly fitted open‑plan kitchen with breakfast bar. Two of the three bedrooms have en suites and many windows overlook the private tennis courts, bringing light and a leafy outlook.
The flat has been newly renovated to a contemporary standard with neutral décor and modern fixtures, while retaining period proportions and high ceilings typical of the building. Heating is by mains‑gas boiler and radiators; the building is solid brick and was constructed before 1900. The long lease (173 years) gives security, but note the property is leasehold and attracts an above‑average service charge and an annual ground rent.
This location places buyers moments from Holland Park itself and within easy reach of Notting Hill Gate, Portobello Road and Central Line transport. Suitable for families who want space in a central, cosmopolitan neighbourhood or downsizers seeking grand proportions without house maintenance. Investors will value the size and location, though the leasehold charges should be factored into running costs.
Material considerations: the service charge (£6,260pa) and ground rent (£500pa) are notable running costs. The building’s solid brick construction suggests limited wall insulation. Overall this is a spacious, well‑appointed apartment in a desirable address, with clear strengths in scale and finish and predictable leasehold costs to budget for.
3 bedroom flat for sale in Holland Villas Road, Holland Park, London, W14 — £2,100,000 • 3 bed • 3 bath • 1352 ft²
5 bedroom apartment for sale in Holland Park, Kensington, W11 — £9,250,000 • 5 bed • 4 bath • 3881 ft²
3 bedroom flat for sale in Holland Park, London, W11 — £6,750,000 • 3 bed • 3 bath • 1736 ft²
3 bedroom apartment for sale in Holland Park Villas, Campden Hill, Kensington, London, W8, United Kingdom, W8 — £7,250,000 • 3 bed • 3 bath • 2430 ft²
2 bedroom apartment for sale in Abbotsbury Road, London, W14 — £1,350,000 • 2 bed • 1 bath • 1023 ft²
3 bedroom flat for sale in Park Close, Ilchester Place, London, W14 — £1,425,000 • 3 bed • 2 bath • 1110 ft²










































































































































































































































































































