Elegant rural living with modern energy features and flexible living space.
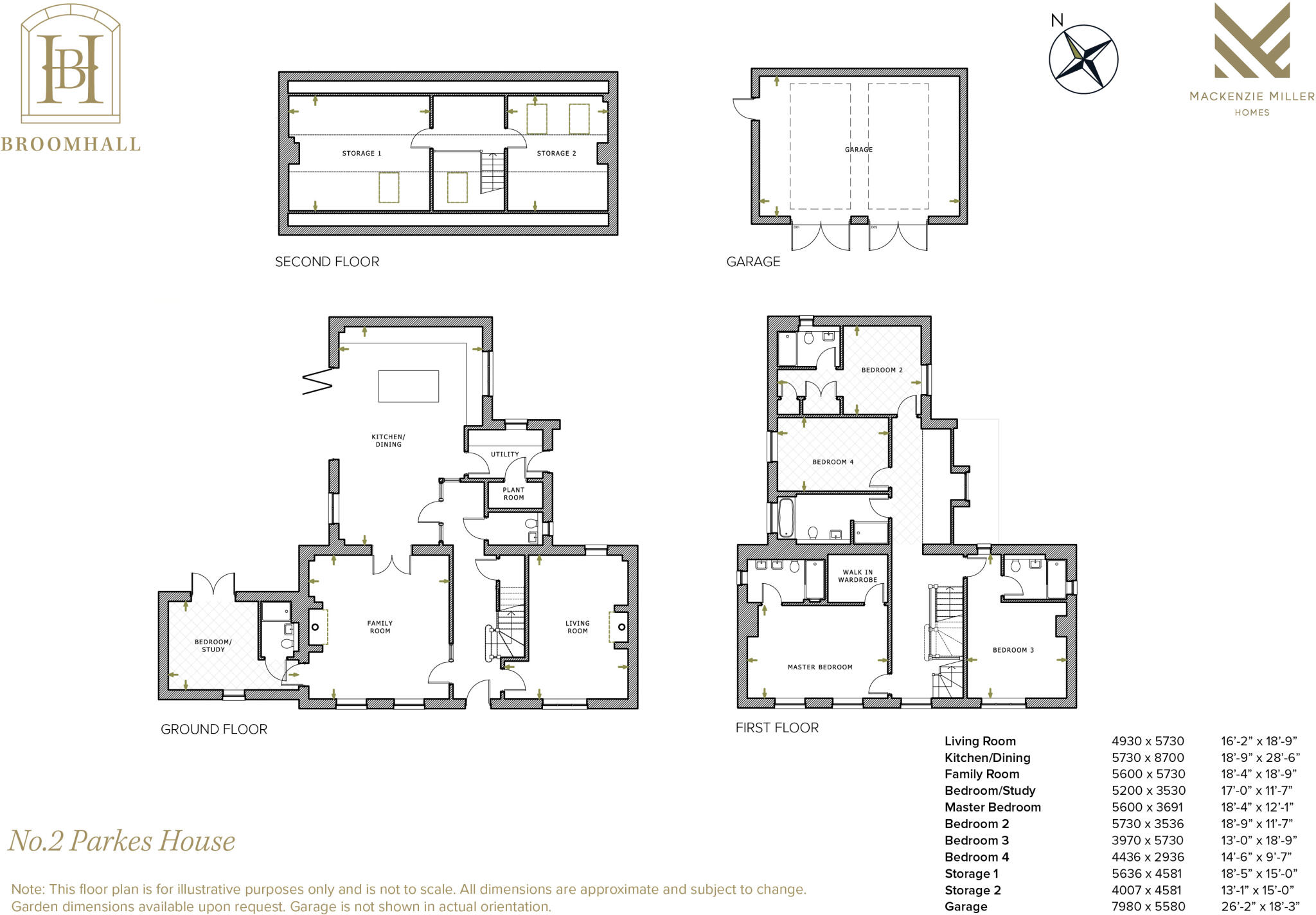
Five spacious double bedrooms, four with ensuite bathrooms
Bespoke shaker kitchen with large island and A-rated Miele appliances
Master suite with panoramic countryside views
Energy-efficient air source heat pump heating the house
Total size c.3,026 sq ft on a very large plot
Two second-floor rooms offered as customisable spaces
New-build freehold construction in Cotswold stone
Average mobile signal; council tax band not specified
This spacious five-bedroom detached home in Leighterton blends classic Cotswold stone with contemporary living across three floors. The house totals about 3,026 sq ft and sits on a very large plot, offering substantial indoor space and generous gardens for family life and outdoor activity.
Principal highlights include a bespoke shaker kitchen with an expansive island and integrated A-rated Miele appliances, an energy-efficient air source heat pump, and a master suite with extensive countryside views. Four of the five double bedrooms have ensuites, making the layout well suited to family living or multi-generational households. Two generous rooms on the second floor are presented as flexible, customisable spaces — ideal for a home office, playroom, or media room but requiring purchaser decisions on final fit-out.
Built from locally quarried Cotswold stone with traditional detailing, the property is offered as a new build freehold and benefits from low local crime and fast broadband. Practical considerations: mobile signal is average in the village, council tax band is not specified, and some interior choices remain available to personalise if you reserve early. Tetbury is under ten minutes away for additional services and schooling, while road links place larger regional centres within reasonable reach.
For families seeking a characterful, energy-conscious home in a tranquil village setting, this property provides a rare combination of traditional materials, modern specification, and flexible living spaces. Buyers wanting a finished turnkey interior should confirm which customisation options remain and check local utilities and council tax details during due diligence.
3 bedroom detached house for sale in Leighterton, Nr Tetbury, Gloucestershire, GL8 — £1,300,000 • 3 bed • 3 bath • 1995 ft²
4 bedroom detached house for sale in The Street, Lea, SN16 — £850,000 • 4 bed • 2 bath • 650 ft²
5 bedroom detached house for sale in Coln St Dennis, Cheltenham, Gloucestershire, GL54 — £2,500,000 • 5 bed • 5 bath • 5562 ft²
5 bedroom detached house for sale in 2 Grove Court, Station Road, GL54 — £950,000 • 5 bed • 3 bath • 2290 ft²
4 bedroom detached house for sale in Willowside Grange, Withington, Cheltenham, GL54 — £1,250,000 • 4 bed • 3 bath • 843 ft²
5 bedroom detached house for sale in Southrop, Gloucestershire, GL7 — £1,300,000 • 5 bed • 4 bath • 2908 ft²










































































