CB4 2HT - 3 bed three bedroom mid terrace in Cambridge, CB4 2HT

View on Property Piper

3 bedroom terraced house for sale in Rutland Close, Cambridge, CB4

Summary - 15 Rutland Close CB4 2HT

3 bed 2 bath Terraced

Practical family home with gardens and study, close to good schools.
Freehold mid-terrace with three bedrooms and two bathrooms
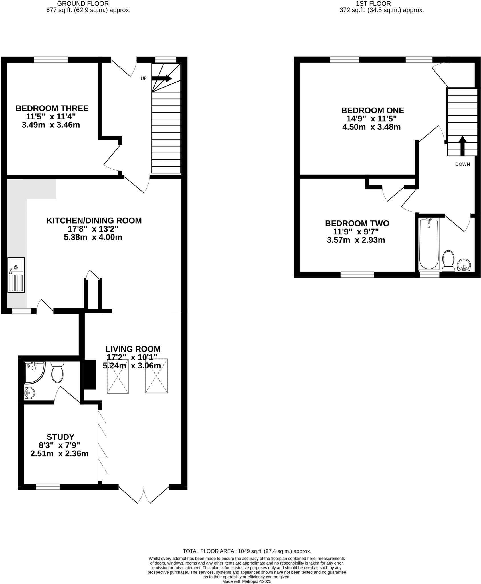
This mid-terrace three-bedroom home on Rutland Close offers practical family living across multi-storey accommodation. The ground floor benefits from an open-plan kitchen/dining area, a separate living room with wood-burning stove, a study and a ground-floor bedroom plus shower room — useful for flexible family layouts or home working.

Outside there are small, low-maintenance front and rear gardens, a patio and gated pedestrian access. The property is double-glazed with gas central heating and totals about 1,049 sq ft, offering a comfortable footprint for a growing family. Local schools rated Good–Outstanding are within reach, and nearby bus links and local amenities suit everyday life.

Built in the late 1970s–early 1980s, the house is structurally conventional with cavity walls and a boiler-fed radiator system. The décor and fixtures pictured were taken before the current tenancy and may not reflect present condition; a viewing is recommended to confirm cosmetic condition and any tenant-related wear. Small plot size and average local crime and area deprivation figures are practical considerations for buyers prioritising outdoor space or socio-economic profile.

This freehold home will suit first-time buyers or families seeking a well-laid-out house in CB4 with scope to personalise. Buyers should allow for typical maintenance associated with a property of this age and confirm details of any tenancy or utility servicing during purchase enquiries.

Property Details

Image Descriptions

Floorplan Description

Rooms

Textual Property Features

Target Audience

AI Tags

Detected Visual Features

EPC Details

Nearby Schools

Nearest Bars And Restaurants

,,,,}

Nearest General Shops

,,}

Nearest Grocery shops

,,}

Nearest Supermarkets

,,}

Nearest Religious buildings

,,}

Nearest Medical buildings

,,,}

Nearest Leisure Facilities

,,,,}

Nearest Tourist attractions

,,}

Nearest Train stations

,,,,}

Nearest Bus stations and stops

,,,,}

Nearest Hotels

,,}

Tags

Local Market Stats

AirBnB Data

Similar Properties

Meta

High Res Images

Compatible Images

Low res Images

Thumbnails

Raw Images

High Res Floorplan Images

Compatible Floorplan Images

Low res Floorplan Images

FloorplanImages Thumbnail

Raw Floorplan Images