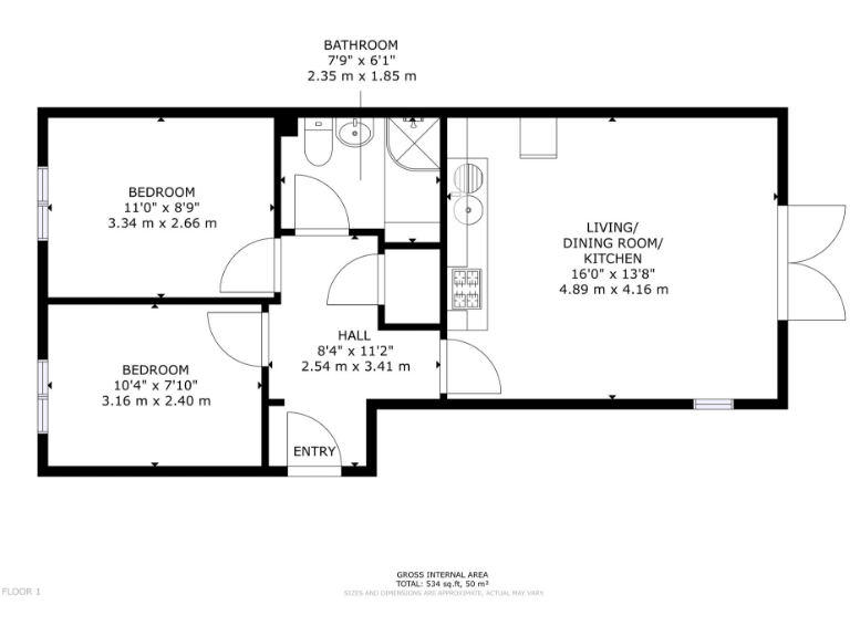
**Standout Features:**
- Ground floor apartment with 2 double bedrooms
- Private garden with patio access from the living area
- Allocated parking for 2 cars
- No onward chain, providing a swift move-in option
- Close proximity to local amenities and schools
- Low crime rate and an affluent neighborhood
- EPC Rating: C
This charming ground floor apartment is an ideal first home or investment opportunity, featuring two spacious double bedrooms and a modern kitchen that opens to your own private garden—a perfect space for relaxation or entertaining. With allocated parking for two cars, the convenience of being close to amenities such as the West Way shopping precinct, and excellent local schooling options like North Hinksey Primary School, it offers a comfortable living experience in a desirable community.
While the current broadband speeds may be on the slower side, the area boasts excellent mobile coverage. The apartment is well-maintained but comes with a modest service charge and a small ground rent, ensuring affordable living costs in a highly qualified professional neighborhood. Don't miss out on this chain-free opportunity to own a piece of Oxford with great potential for future renovations! Act quickly, as properties like this are rarely available for long!
2 bedroom flat for sale in Summertown, Oxford, OX2 — £350,000 • 2 bed • 1 bath • 663 ft²
2 bedroom apartment for sale in Victoria Road, Summertown, OX2 — £695,000 • 2 bed • 2 bath • 823 ft²
2 bedroom apartment for sale in Warren Crescent, Headington, Oxford, Oxfordshire, OX3 — £300,000 • 2 bed • 1 bath • 722 ft²
2 bedroom ground floor flat for sale in Five Mile Drive, The Lodge, OX2 — £400,000 • 2 bed • 1 bath • 804 ft²
2 bedroom apartment for sale in Skene Close, Little Oxford, OX3 — £300,000 • 2 bed • 1 bath • 468 ft²
2 bedroom apartment for sale in Sunderland Avenue, Oxford, Oxfordshire, OX2 — £325,000 • 2 bed • 1 bath • 552 ft²


































































