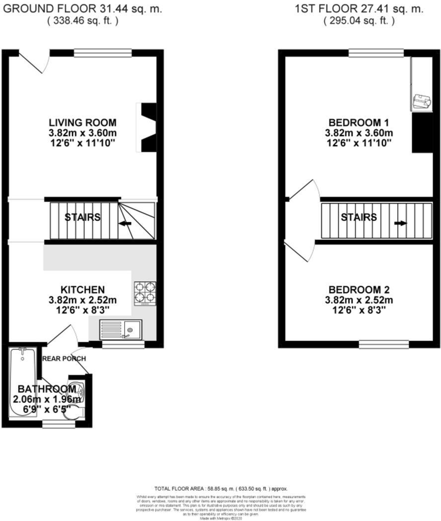
**Standout Features:**
- Completely renovated two-bedroom terraced home
- Prime location in Central Hoole with off-street parking
- High-quality finishing touches and new electrics
- Modern kitchen with integrated appliances and contemporary living space
- Strong rental potential with existing agreement at £1,100pcm
- EPC Grade C - efficient energy usage
**Summary:**
Discover this beautifully renovated two-bedroom terraced home, ideally situated in the desirable Central Hoole area. With a contemporary design featuring white walls, laminate flooring, and a stylish kitchen complete with modern appliances, this property is perfect for first-time buyers or investors seeking a low-maintenance rental opportunity. The home boasts an off-street parking space, which is a rarity in this central location, and enjoys excellent transport links nearby.
The property benefits from a solid brick build and a new combi boiler, ensuring comfort and warmth throughout. Enjoy the vibrant local community with excellent primary and secondary schools, various amenities, and easy access to city attractions. While the home is cozy and well-maintained, it's important to note that it has solid walls with no insulation, which could be a consideration for energy efficiency.
This property offers a fantastic mix of modern living and future potential, allowing you to envision yourself in a welcoming environment that provides both comfort and security. Don't miss out—schedule your viewing today!
2 bedroom terraced house for sale in West Street, Hoole, Chester, Cheshire, CH2 — £230,000 • 2 bed • 1 bath • 964 ft²
2 bedroom terraced house for sale in Hoole Lane, Chester, CH2 — £220,000 • 2 bed • 1 bath • 739 ft²
2 bedroom terraced house for sale in Hewitt Street, Hoole, Chester, CH2 — £325,000 • 2 bed • 1 bath • 860 ft²
2 bedroom terraced house for sale in Edna Street, Chester, Cheshire, CH2 — £230,000 • 2 bed • 1 bath • 858 ft²
1 bedroom end of terrace house for sale in Westminster Road, Hoole, CH2 — £170,000 • 1 bed • 1 bath • 433 ft²
2 bedroom terraced house for sale in Hewitt Street, Hoole, Chester, CH2 — £320,000 • 2 bed • 1 bath • 807 ft²


















































