Chain-free 1930s home with strong extension potential near central transport.
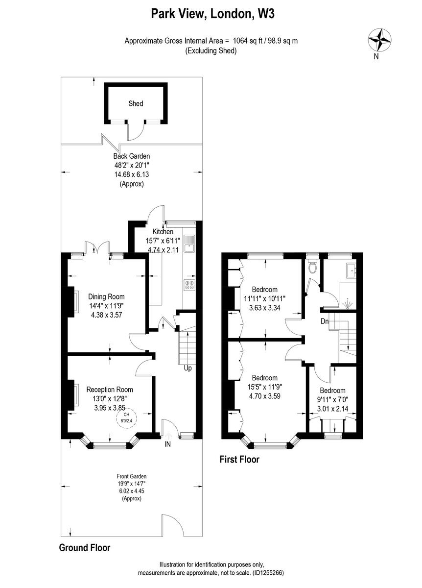
Three bedrooms with two reception rooms for flexible family living
A 1930s three-bedroom mid-terraced home offering clear scope to create a larger, modern family house. The property is chain-free and sits on a small south-facing garden, with potential to extend upward and rearward (subject to planning) to substantially increase living space and value.
The house requires full renovation: dated interior, one bathroom, and assumed solid-brick walls with no insulation. Heating runs from an electric boiler and radiators; main fuel is electricity. Council tax is above average and local recorded crime is very high—both practical considerations for buyers and renovators.
Location is a major strength: short walk to Elizabeth and Central lines, easy access to the A40, and North Acton Playing Fields at the road end. The area has several highly regarded schools nearby, making this a sensible project for a family seeking long-term space and capital appreciation once modernised.
3 bedroom house for sale in Court Way, London, W3 — £650,000 • 3 bed • 1 bath • 1000 ft²
3 bedroom terraced house for sale in Court Way, Acton, W3 — £750,000 • 3 bed • 2 bath • 1030 ft²
4 bedroom terraced house for sale in Cecil Road, Acton, Acton, W3 — £895,000 • 4 bed • 3 bath • 1410 ft²
3 bedroom end of terrace house for sale in Highfield Road, Acton, Acton, W3 — £725,000 • 3 bed • 1 bath • 1316 ft²
4 bedroom terraced house for sale in Braid Avenue, London, W3 7TU, W3 — £675,000 • 4 bed • 1 bath • 958 ft²
3 bedroom terraced house for sale in Brouncker Road, London, W3 — £850,000 • 3 bed • 1 bath • 1096 ft²


































