**Standout Features:**
- Fully renovated semi-detached bungalow
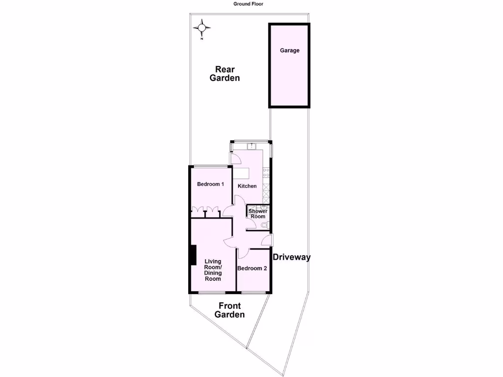
- 2 bedrooms and spacious living/dining area
- Modern kitchen with shaker-style units and integrated appliances
- Stylish shower room with walk-in cubicle
- Landscaped rear garden, single garage, and off-street parking
- Located in a quiet cul-de-sac in Huntington, York
- Close to local amenities and excellent transport links
This immaculate semi-detached bungalow offers a harmonious blend of modern living and suburban charm, perfect for families or those looking to downsize. Featuring two well-proportioned bedrooms and a light-filled living and dining room, this home radiates comfort. The modern kitchen boasts ample storage and integrated appliances, ideal for culinary enthusiasts, while the stunning shower room adds a touch of luxury.
Step outside to discover a beautifully landscaped garden, perfect for entertaining or quietly unwinding after a busy day. With its single garage and generous off-street parking, this property caters to practicality as well. Nestled in the desirable Huntington area, you're just a stone's throw from local shops, schools, and the vibrant city of York—with easy access to retail parks and major roadways.
With such enhanced features and a prime location, this newly renovated bungalow is an exclusive opportunity that won’t last long. Whether searching for your forever home or an investment, envision the possibilities within!
2 bedroom semi-detached bungalow for sale in Greenway, Huntington, York, YO32 9QE, YO32 — £270,000 • 2 bed • 1 bath • 637 ft²
2 bedroom semi-detached bungalow for sale in Greenway, Huntington, York, YO32 9QE, YO32 — £275,000 • 2 bed • 1 bath • 678 ft²
2 bedroom bungalow for sale in Doriam Drive, York, North Yorkshire, YO31 — £315,000 • 2 bed • 2 bath • 940 ft²
2 bedroom semi-detached bungalow for sale in Heather Close, Huntington, York YO32 9PB , YO32 — £274,000 • 2 bed • 1 bath • 606 ft²
2 bedroom bungalow for sale in North Moor Road, Huntington, York, North Yorkshire, YO32 — £250,000 • 2 bed • 1 bath • 789 ft²
3 bedroom semi-detached bungalow for sale in Woodland Way, Huntington, York, YO32 — £260,000 • 3 bed • 1 bath • 729 ft²


















































































