EX39 6AT - 3 bedroom semidetached house for sale in Long Furlong, Hart…

View on Property Piper

3 bedroom semi-detached house for sale in Long Furlong, Hartland, Bideford, EX39

Summary - Long Furlong, Hartland, Bideford, EX39 EX39 6AT

3 bed 2 bath Semi-Detached

Characterful 3-bed barn conversion with sea views and private parking.
Grade II listed barn conversion with period character
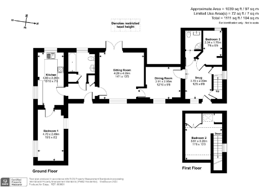
A charming Grade II listed barn conversion set in a quiet hamlet on the Hartland Peninsula, recently updated and laid out for flexible living. The well-planned interior includes three bedrooms, two bathrooms and a double-aspect sitting room that opens to a raised deck with sea and countryside views. Private off-street parking and a large detached shed add useful storage for bikes, surfboards and garden equipment.

This property works equally well as a main home, coastal retreat or holiday-let/dual-occupancy opportunity — furniture is available by negotiation. Practical advantages include oil-fired central heating, planning permission for a multi-fuel burner in the sitting room and low local crime. The house is chain-free and offered with vacant possession.

Important practical points: the home is Grade II listed, which will restrict some changes and could complicate consent for alterations. There is a modest annual service charge of £500 for communal grounds and the shared sewage system. Broadband speeds are very slow, and the location is remote, so daily commuting and some services require longer drives.

Overall this is a characterful, compact coastal property for buyers who value tranquillity, scenery and a turn-key holiday-let or second-home setup, while accepting the limits imposed by listed status and basic rural infrastructure.

Property Details

Image Descriptions

Floorplan Description

Rooms

Textual Property Features

Target Audience

AI Tags

Detected Visual Features

Nearby Schools

Nearest Bars And Restaurants

,,,,}

Nearest General Shops

,,}

Nearest Grocery shops

,,}

Nearest Supermarkets

,,}

Nearest Religious buildings

,,}

Nearest Medical buildings

,,,}

Nearest Leisure Facilities

,,,,}

Nearest Tourist attractions

,,}

Nearest Train stations

,,,,}

Nearest Bus stations and stops

,,,,}

Nearest Hotels

,,}

Tags

Local Market Stats

AirBnB Data

Similar Properties

Meta

High Res Images

Compatible Images

Low res Images

Thumbnails

Raw Images

High Res Floorplan Images

Compatible Floorplan Images

Low res Floorplan Images

FloorplanImages Thumbnail

Raw Floorplan Images