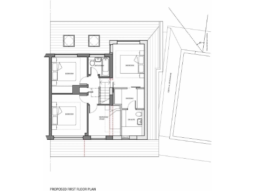
Approved extension plans create four bedrooms, en suite and open-plan living near top schools.
Well-located in Lark Rise Academy catchment (Outstanding).
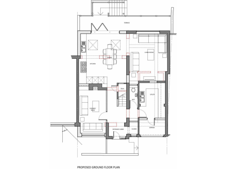
Planning permission granted for 4th bedroom, en suite and open-plan kitchen.
Downstairs shower room plus separate W/C adds family convenience.
Garage and off-street parking; EV charger approved.
Stunning elevated rear views across Dunstable.
Freehold; total area approx 904 sq ft (average sized).
EPC rating D — lower energy efficiency than modern homes.
Development works required to realise planning permission (cost/time).
This three-bedroom semi-detached home in South West Dunstable offers practical family living with clear scope to increase value. The layout already includes two reception rooms, a downstairs shower and separate W/C, plus a garage and off-street parking — useful for everyday family life. The property sits in the Lark Rise Academy catchment and enjoys elevated rear views across the town.
Planning permission has been granted to create a fourth bedroom with dressing room and en suite, a full utility room and an open-plan kitchen-diner. That consent represents genuine development potential for a buyer wanting more space or improved resale value; works are not yet carried out and will require time and budget to implement.
The house is freehold, 904 sq ft overall and has an EV charger approved. Practical considerations include an EPC rating of D and an average-sized plot and living area typical of mid-20th-century suburban stock — attractive to many but with lower energy efficiency than newer builds. The surrounding area is very affluent with low crime and good transport links, making this a solid choice for families seeking space and future potential.
3 bedroom semi-detached house for sale in Staveley Road, Dunstable, Bedfordshire, LU6 — £425,000 • 3 bed • 1 bath • 996 ft²
3 bedroom semi-detached house for sale in Lowther Road, Dunstable, Bedfordshire, LU6 — £400,000 • 3 bed • 1 bath • 974 ft²
3 bedroom semi-detached house for sale in Cartmel Drive, Dunstable, LU6 — £450,000 • 3 bed • 2 bath • 600 ft²
3 bedroom semi-detached house for sale in Bibshall Crescent, Dunstable, LU6 — £400,000 • 3 bed • 1 bath • 715 ft²
3 bedroom semi-detached house for sale in Houghton Road, Dunstable, LU5 — £375,000 • 3 bed • 1 bath • 976 ft²
3 bedroom semi-detached house for sale in Miletree Crescent, Dunstable, Bedfordshire, LU6 — £425,000 • 3 bed • 1 bath • 906 ft²


























































































